HOME - 지성갤러리 > 설계갤러리 Modern 39평형
전남 화순 황OO님
01 외부투시도
Bird's-eye view
02 건축개요
Housing Summary| 총면적 | 130.44㎡ (39.46py) | 구조 | 경량목구조 |
|---|---|---|---|
| 1층면적 | 83.68㎡ (25.31py) | 지붕 | 평기와 |
| 2층면적 | 46.76㎡ (14.15py) | 외부마감 | 스타고, 칼라강판, 세라믹사이딩, 파벽돌 |
| 3층면적 | - | 내부마감 | LG실크벽지, LG강화마루 |
| 1층포치 / 데크 | 5.00㎡ (1.51py) / 34.7㎡ (10.50py) | 창호 | 시스템창호 |
| 2층발코니 / 베란다 | 10.14㎡ (3.07py) / - | 다락 / 거실오픈 | - / 2.0층 오픈 |
| 3층발코니 / 베란다 | - |
03 설계컨셉
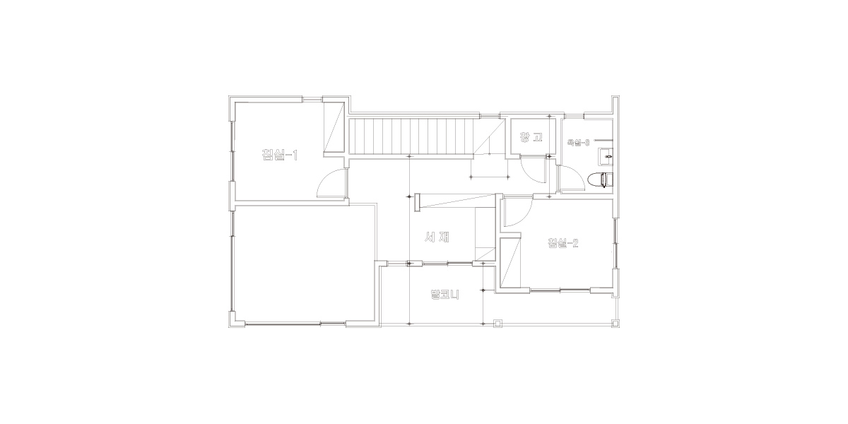
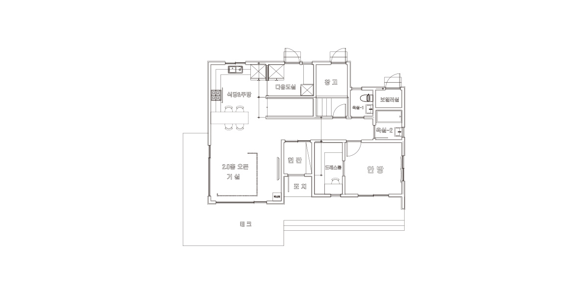
Design concept04 공간구성
Floor Plan| 1F | 1층 구성: 현관, 거실, 주방, 다용도실, 드레스룸, 창고, 안방, 보일러실, 오픈거실, 욕실-1, 욕실-2 |
|---|
| 2F | 2층 구성: 침실-1, 침실-2, 욕실-3, 서재, 발코니, 창고 |
|---|