HOME - 지성갤러리 > 설계갤러리 Classic 29평형
전북 남원 이OO님
01 외부투시도
Bird's-eye view
02 건축개요
Housing Summary| 총면적 | 96.80㎡ (28.52py) | 구조 | 경량목구조 |
|---|---|---|---|
| 1층면적 | 94.30㎡ (0.78py) | 지붕 | 아스팔트싱글 |
| 2층면적 | - | 외부마감 | 적삼목, 스타코,파벽돌,방부목 |
| 3층면적 | - | 내부마감 | LG실크벽지, LG강화마루 |
| 1층포치 / 데크 | 2.60㎡ (0.78py) / 23.67㎡ (7.16py) | 창호 | 시스템창호 |
| 2층발코니 / 베란다 | - | 다락 / 거실오픈 | - |
| 3층발코니 / 베란다 | - |
03 설계컨셉
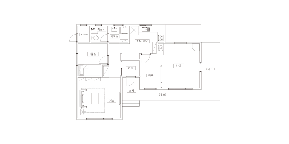
Design concept04 공간구성
Floor Plan| 1F | 1층 구성: 현관,침실,보일러실,욕실-1,세탁실,주방,작업장,카페,현관,마루,거실 |
|---|
| 2F | 2층 구성: - |
|---|