HOME - 지성갤러리 > 설계갤러리 Modern 36평형
충북 음성 김OO님
01 외부투시도
Bird's-eye view
02 건축개요
Housing Summary| 총면적 | 120.09㎡ (36.16py) | 구조 | 경량목구조 |
|---|---|---|---|
| 1층면적 | 72.63㎡ (21.97py) | 지붕 | 아스팔트슁글 |
| 2층면적 | 47.68㎡ (14.42py) | 외부마감 | 스타코, 리얼징크, 적삼목사이딩 |
| 3층면적 | - | 내부마감 | LG실크벽지, LG강화마루 |
| 1층포치 / 데크 | 2.52㎡ (0.76py) / 10.41㎡ (3.15py) | 창호 | 시스템창호 |
| 2층발코니 / 베란다 | 6.24㎡ (1.88py) | 다락 / 거실오픈 | - / 2층오픈 |
| 3층발코니 / 베란다 | - |
03 설계컨셉
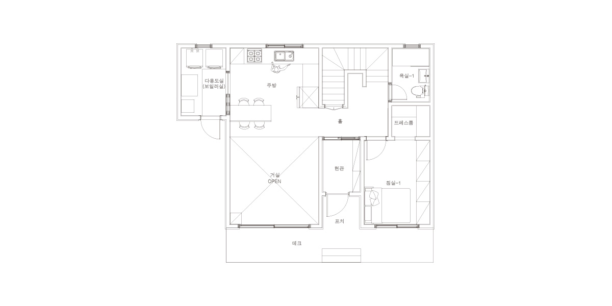
Design concept04 공간구성
Floor Plan| 1F | 1층 구성: 현관, 거실, 침실1, 홀, 드레스룸, 욕실1, 주방, 다용도실 |
|---|
| 2F | 2층 구성: 드레스룸, 욕실2, 침실2, 침실3 |
|---|