HOME - 지성갤러리 > 설계갤러리 Modern 31평형
울산 울주 변OO님
01 외부투시도
Bird's-eye view
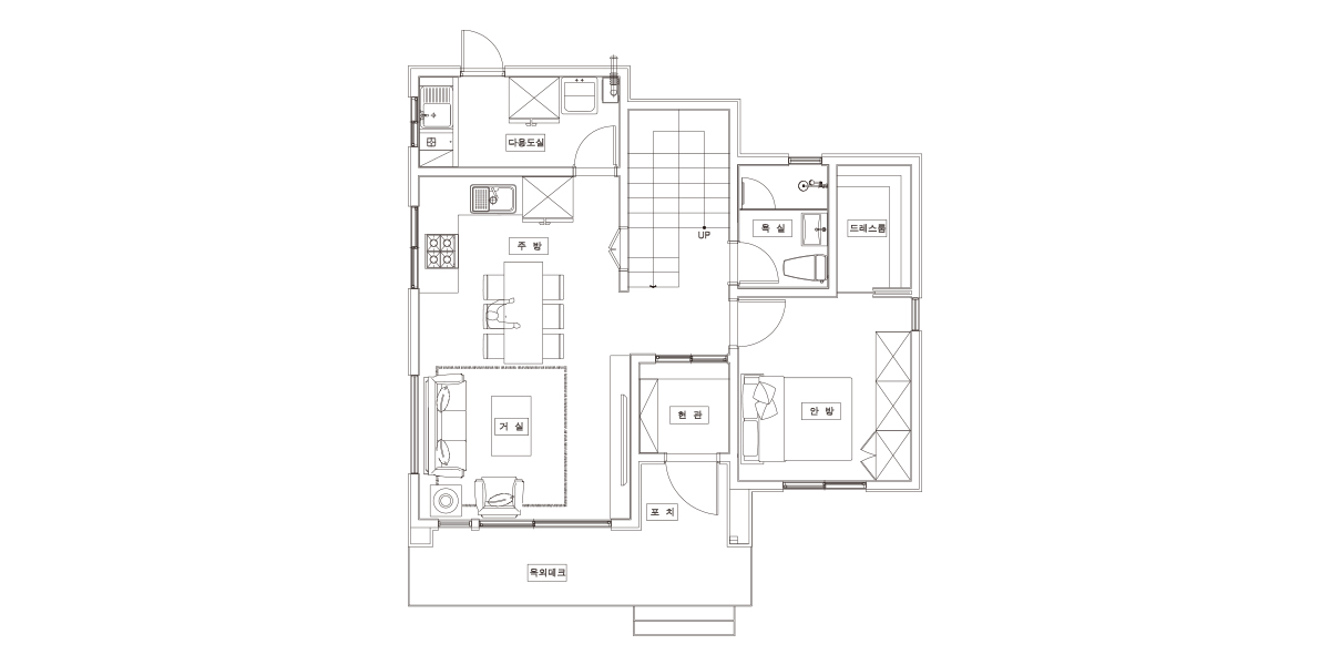
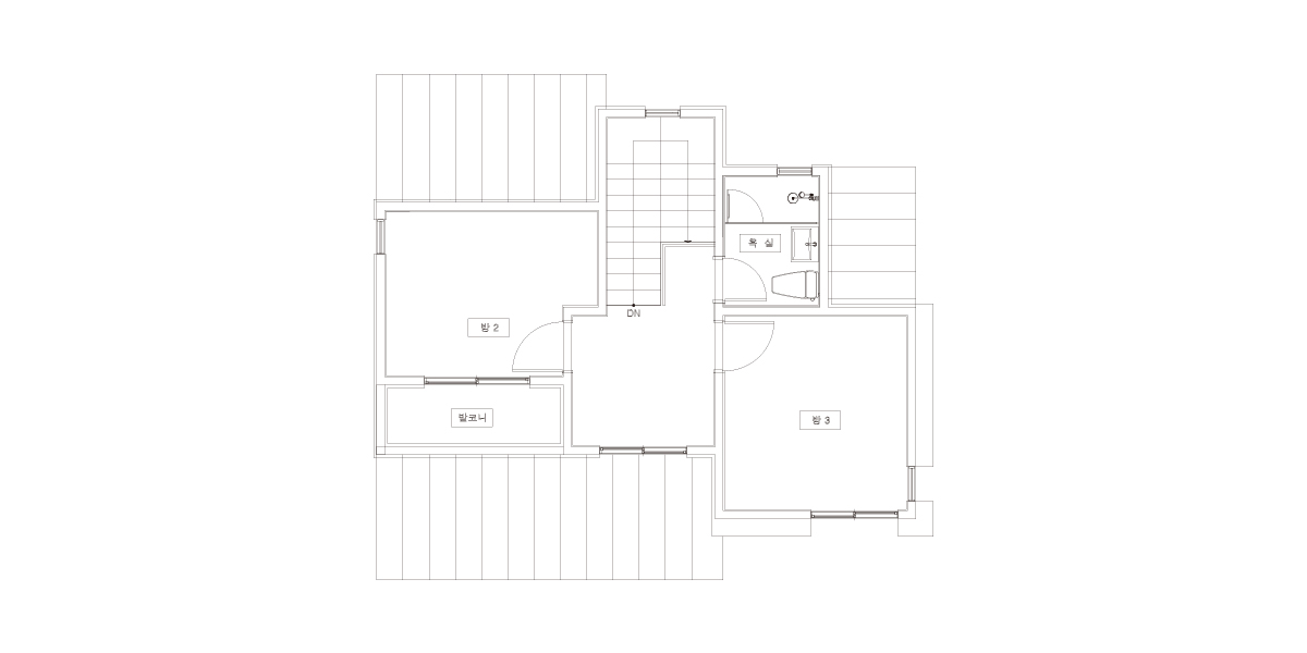
02 건축개요
Housing Summary| 총면적 | 112.31㎡ (33.97py) | 구조 | 경량목구조 |
|---|---|---|---|
| 1층면적 | 63.67㎡ (19.26py) | 지붕 | 아스팔트싱글 |
| 2층면적 | 39.59㎡ (11.98py) | 외부마감 | 스타코, 파벽돌, 리얼징크, 세라믹사이딩, 탄화목사이딩 |
| 3층면적 | - | 내부마감 | LG실크벽지, LG강화마루 |
| 1층포치 / 데크 | 2.70㎡ (0.82py) | 창호 | 시스템창호 |
| 2층발코니 / 베란다 | 3.84㎡ (1.16py) | 다락 / 거실오픈 | - |
| 3층발코니 / 베란다 | - |
03 설계컨셉
Design concept04 공간구성
Floor Plan| 1F | 1층 구성: 현관, 거실, 주방, 다용도실, 욕실, 드레스룸, 안방 |
|---|
| 2F | 2층 구성: 가족실, 방2, 방3, 욕실, 발코니 |
|---|