HOME - 지성갤러리 > 설계갤러리 Modern 37평형
울산 울주 임OO님
01 외부투시도
Bird's-eye view
02 건축개요
Housing Summary| 총면적 | 121.14㎡ (36.64py) | 구조 | 경량목구조 |
|---|---|---|---|
| 1층면적 | 86.47㎡ (26.16py) | 지붕 | 아스팔트싱글 |
| 2층면적 | 34.67㎡ (10.49py) | 외부마감 | 스타코, 세라믹사이딩, 리얼징크, 파벽돌 |
| 3층면적 | - | 내부마감 | LG실크벽지, LG강화마루 |
| 1층포치 / 데크 | 1.52㎡ (0.45py) / 19.33㎡ (5.85py) | 창호 | 시스템창호 |
| 2층발코니 / 베란다 | 7.74㎡ (2.34py) | 다락 / 거실오픈 | - / 1.5층 오픈 |
| 3층발코니 / 베란다 | - |
03 설계컨셉
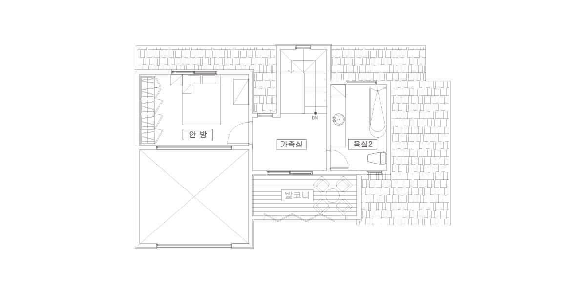
Design concept04 공간구성
Floor Plan| 1F | 1층 구성: 현관, 거실, 주방/식당, 다용도실, 복도, 놀이방, 가족침실, 욕실, 보일러실/창고 |
|---|
| 2F | 2층 구성: 가족실, 안방, 욕실2 |
|---|