HOME - 지성갤러리 > 설계갤러리 Classic 46평형
대전 유성 김OO님
01 외부투시도
Bird's-eye view
02 건축개요
Housing Summary| 총면적 | 151.70㎡ (45.92py) | 구조 | 경량목구조 |
|---|---|---|---|
| 1층면적 | 102.93㎡ (31.13py) / 지하주차장 면적: 88.45㎡ (26.75py) | 지붕 | 아스팔트싱글 |
| 2층면적 | 48.77㎡ (14.75py) | 외부마감 | 스타코, 벽돌, 컬러강판 |
| 3층면적 | - | 내부마감 | LG실크벽지, LG강화마루 |
| 1층포치 / 데크 | 3.97㎡ (1.20py) / 19.95㎡ (6.03py) | 창호 | 시스템창호 |
| 2층발코니 / 베란다 | 8.87㎡ (2.68py) | 다락 / 거실오픈 | - |
| 3층발코니 / 베란다 | - |
03 설계컨셉
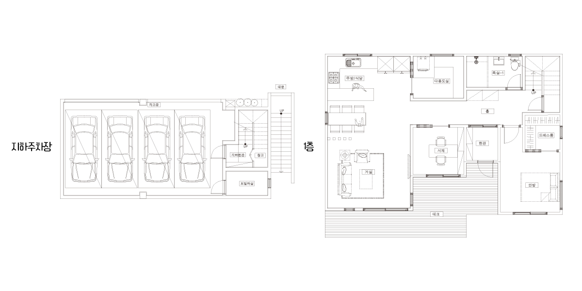
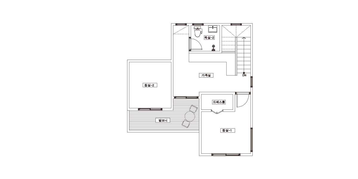
Design concept04 공간구성
Floor Plan| 1F | 1층 구성: 현관, 거실, 주방/식당, 서재, 다용도실, 욕실1, 홀, 드레스룸, 안방 / 지하추자장 구성: 지하현관, 창고, 보일러실 |
|---|
| 2F | 2층 구성: 가족실, 치밀1, 드레스룸, 침실2, 욕실2 |
|---|