HOME - 지성갤러리 > 설계갤러리 Modern 45평형
충남 아산 홍OO님
01 외부투시도
Bird's-eye view
02 건축개요
Housing Summary| 총면적 | 148.87㎡ (45.03py) | 구조 | 경량목구조 |
|---|---|---|---|
| 1층면적 | 107.40㎡ (32.49py) | 지붕 | 아스팔트싱글 |
| 2층면적 | 41.47㎡ (12.55py) | 외부마감 | 스타코, 파벽돌 |
| 3층면적 | - | 내부마감 | LG실크벽지, LG강화마루 |
| 1층포치 / 데크 | 15.48㎡ (4.68py) / 46.40㎡ (14.06py) | 창호 | 시스템창호 |
| 2층발코니 / 베란다 | 3.74㎡ (1.13py) | 다락 / 거실오픈 | - |
| 3층발코니 / 베란다 | - |
03 설계컨셉
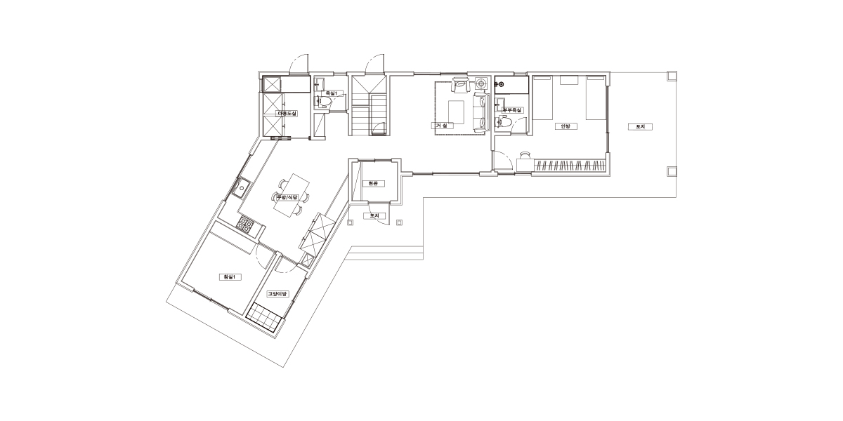
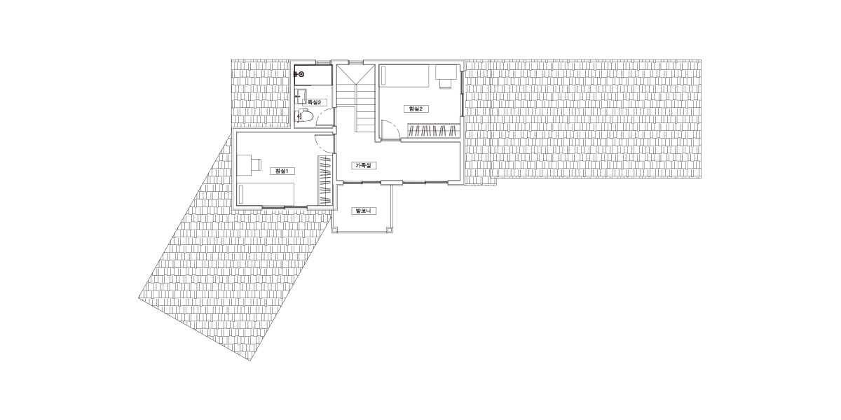
Design concept04 공간구성
Floor Plan| 1F | 1층 구성: 현관, 주방/식당, 침실1, 고양이방, 거실, 욕실1, 부부욕실, 안방, 다용도실 |
|---|
| 2F | 2층 구성: 가족실, 침실1, 욕실2, 침실2 |
|---|