HOME - 지성갤러리 > 설계갤러리 Classic 38평형
경기 양평 김OO님
01 외부투시도
Bird's-eye view
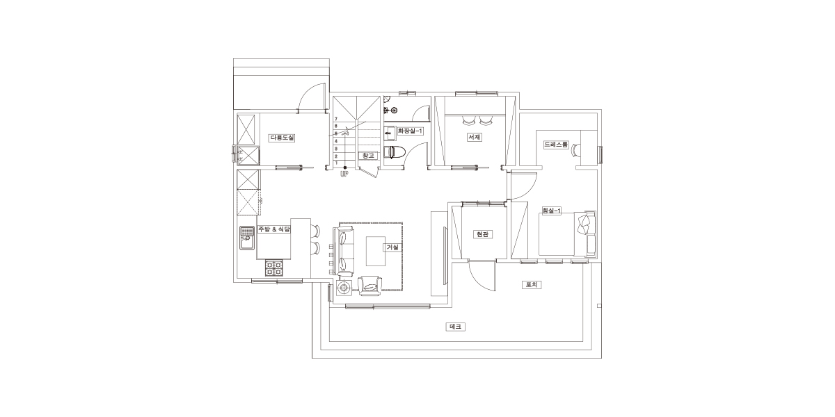
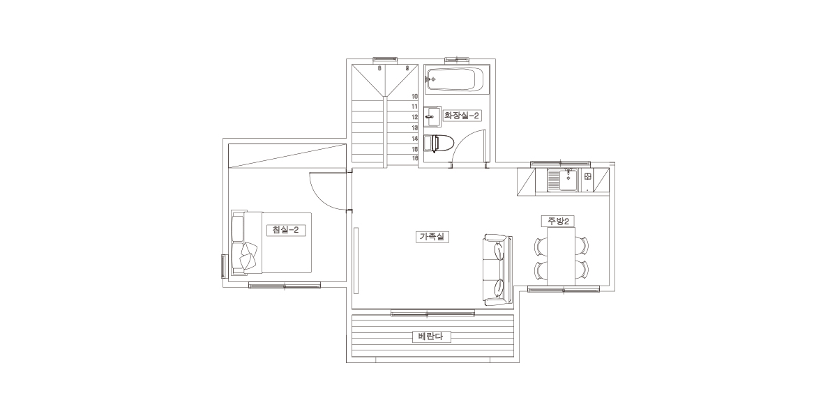
02 건축개요
Housing Summary| 총면적 | 124.93 (37.79py) | 구조 | 경량목구조 |
|---|---|---|---|
| 1층면적 | 81.43㎡ (24.63py) | 지붕 | 아스팔트싱글 |
| 2층면적 | 43.50㎡ (13.16py) | 외부마감 | 스타코, 목재사이딩 , 파벽돌 |
| 3층면적 | - | 내부마감 | LG실크벽지, LG강화마루 |
| 1층포치 / 데크 | 8.48㎡ (02.57py) / 33.03㎡ (09.99py) | 창호 | 시스템창호 |
| 2층발코니 / 베란다 | 5.04㎡ (01.52py) | 다락 / 거실오픈 | - |
| 3층발코니 / 베란다 | - |
03 설계컨셉
Design concept04 공간구성
Floor Plan| 1F | 1층 구성: 현관, 거실, 주방/식당, 다용도실, 화장실1, 서재, 침실1, 드레스룸 |
|---|
| 2F | 2층 구성: 가족실, 주방2, 침실2, 화장실2 |
|---|