HOME - 지성갤러리 > 설계갤러리 Modern 36평형
경남 밀양 김OO님
01 외부투시도
Bird's-eye view
02 건축개요
Housing Summary| 총면적 | 118.23㎡ (35.77py) | 구조 | 경량목구조 |
|---|---|---|---|
| 1층면적 | 69.95㎡ (21.16py) | 지붕 | 아스팔트싱글 |
| 2층면적 | 48.28㎡ (14.61py) | 외부마감 | 스타코, 파벽돌, 적삼목사이딩 |
| 3층면적 | - | 내부마감 | LG실크벽지, LG강화마루 |
| 1층포치 / 데크 | 2.87㎡ (0.87py) / 27.37㎡ (8.29py) | 창호 | 시스템창호 |
| 2층발코니 / 베란다 | 5.04㎡ (1.53py) | 다락 / 거실오픈 | - |
| 3층발코니 / 베란다 | - |
03 설계컨셉
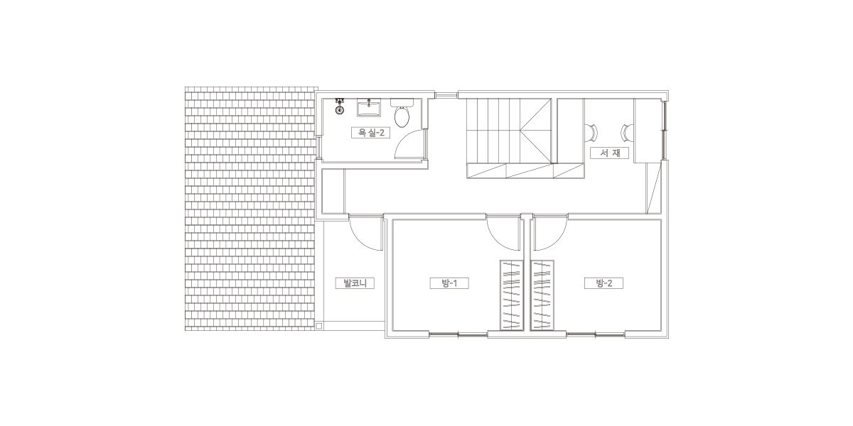
Design concept04 공간구성
Floor Plan| 1F | 1층 구성: 현관, 거실, 주방/식당, 안방, 드레스룸, 부부욕실, 욕실1, 보일러실, 다용도실 |
|---|
| 2F | 2층 구성: 서재, 욕실2, 발코니, 방1, 방2 |
|---|