HOME - 지성갤러리 > 설계갤러리 Modern 31평형
충남 천안 김OO님 (크레아 2-16)
01 외부투시도
Bird's-eye view
02 건축개요
Housing Summary| 총면적 | 102.70㎡ (31.10py) | 구조 | 경량목구조 |
|---|---|---|---|
| 1층면적 | 64.60㎡ (19.60py) | 지붕 | 아스팔트슁글 |
| 2층면적 | 38.10㎡ (11.70py) | 외부마감 | 스타코, 리얼징크, 파벽돌 |
| 3층면적 | - | 내부마감 | LG실크벽지, LG강화마루 |
| 1층포치 / 데크 | 1.82㎡ (0.58py) / 18.90㎡ (5.70py) | 창호 | 시스템창호 |
| 2층발코니 / 베란다 | 7.40㎡ (2.20py) | 다락 / 거실오픈 | - / 1.5층 오픈 |
| 3층발코니 / 베란다 | - |
03 설계컨셉
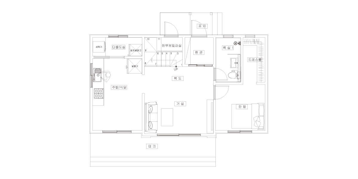
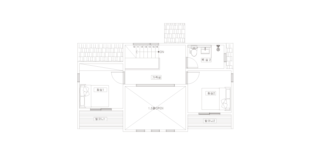
Design concept04 공간구성
Floor Plan| 1F | 1층 구성: 현관, 거실, 주방/식당, 다용도실, 욕실1, 안방 |
|---|
| 2F | 2층 구성: 가족실, 침실1, 욕실2, 침실2 |
|---|