HOME - 지성갤러리 > 설계갤러리 Classic 28평형
전북 남원 신OO님
01 외부투시도
Bird's-eye view
02 건축개요
Housing Summary| 총면적 | 92.78㎡ (28.05py) | 구조 | 경량목구조 |
|---|---|---|---|
| 1층면적 | 90.44㎡ (27.35py) | 지붕 | 아스팔트싱글 |
| 2층면적 | - | 외부마감 | 스타코, 파벽돌 |
| 3층면적 | - | 내부마감 | LG실크벽지, LG강화마루 |
| 1층포치 / 데크 | 2.34㎡ (0.71py) / 27.44㎡ (6.80py) | 창호 | 시스템창호 |
| 2층발코니 / 베란다 | - | 다락 / 거실오픈 | 16.80㎡ (5.08py) |
| 3층발코니 / 베란다 | - |
03 설계컨셉
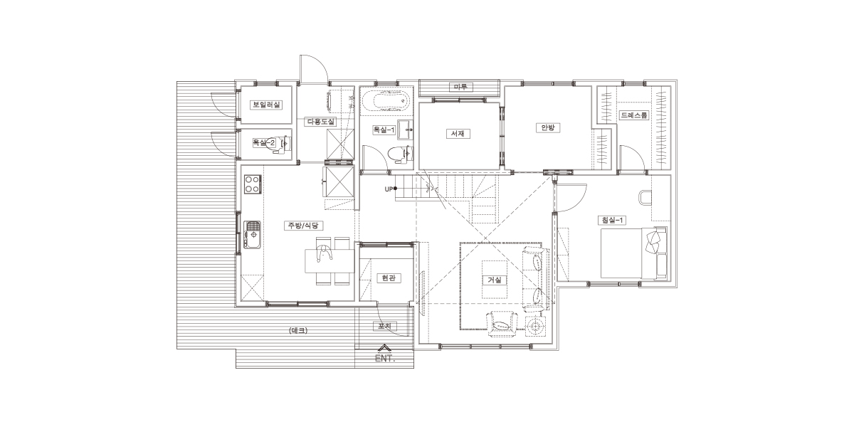
Design concept04 공간구성
Floor Plan| 1F | 1층 구성: 현관, 거실, 주방/식당, 다용도실, 보일러실, 욕실1, 욕실2, 서재, 안방, 침실1, 드레스룸 |
|---|
| 2F | 2층 구성: 다락 |
|---|