HOME - 지성갤러리 > 설계갤러리 Modern 40평형
전남 장성 김OO님
45도 꺾인 건물 형태가 주는 독특한 입면 형태가 특징이다
그레이색의 파벽돌과 탄화목 사이딩을 적용하여 모던하면서도 따뜻한 느낌을 준다
01 외부투시도
Bird's-eye view
02 건축개요
Housing Summary| 총면적 | 132.81㎡ (40.18py) | 구조 | 경량목구조 |
|---|---|---|---|
| 1층면적 | 79.01㎡ (23.91py) | 지붕 | 아스팔트싱글 |
| 2층면적 | 53.80㎡ (16.07py) | 외부마감 | 테라코트, 파벽돌 |
| 3층면적 | - | 내부마감 | LG실크벽지, LG강화마루 |
| 1층포치 / 데크 | 3.68㎡ (1.11py) / 17.09㎡ (5.17py) | 창호 | 시스템창호 |
| 2층발코니 / 베란다 | 3.60㎡ (1.09py) | 다락 / 거실오픈 | - |
| 3층발코니 / 베란다 | - |
03 설계컨셉
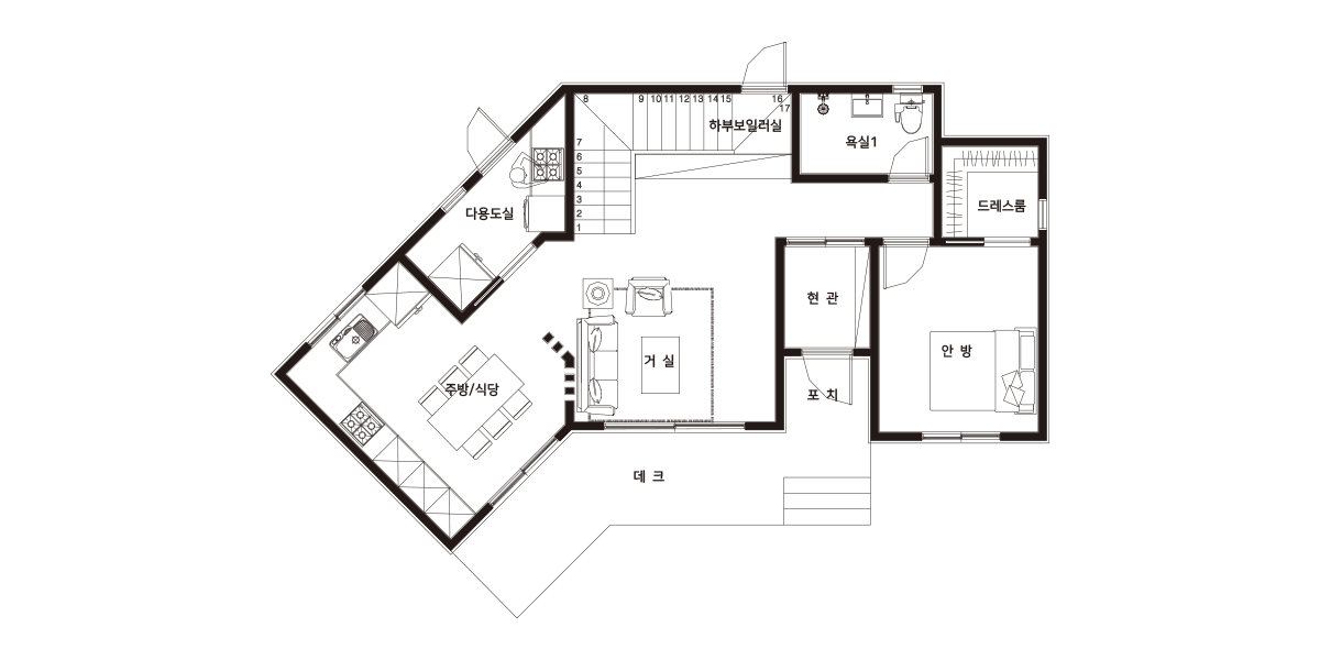
Design concept04 공간구성
Floor Plan| 1F | 1층 구성: 현관, 거실, 주방/식당, 다용돋실, 욕실1, 안방, 드레스룸 |
|---|
| 2F | 2층 구성: 가족실, 침실1, 침실2, 침실3, 욕실2, 발코니 |
|---|