HOME - 지성갤러리 > 설계갤러리 Modern 31평형
경기 광주 구OO님
그레이톤 파벽과 스타코 마감으로 안정감있는 단층형 목조주택
넓게 구성된 거실과 오픈천정, 큰 창호 계획으로 개방감 확보
01 외부투시도
Bird's-eye view
02 건축개요
Housing Summary| 총면적 | 103.15㎡ (31.21py) | 구조 | 경량목구조 |
|---|---|---|---|
| 1층면적 | 101.35㎡ (30.66py) | 지붕 | 아스팔트싱글 |
| 2층면적 | - | 외부마감 | 테라코트, 파벽돌 |
| 3층면적 | - | 내부마감 | LG실크벽지, LG강화마루 |
| 1층포치 / 데크 | 1.80㎡ (0.55py) / 10.40㎡ (3.15py) | 창호 | 시스템창호 |
| 2층발코니 / 베란다 | - | 다락 / 거실오픈 | - |
| 3층발코니 / 베란다 | - |
03 설계컨셉
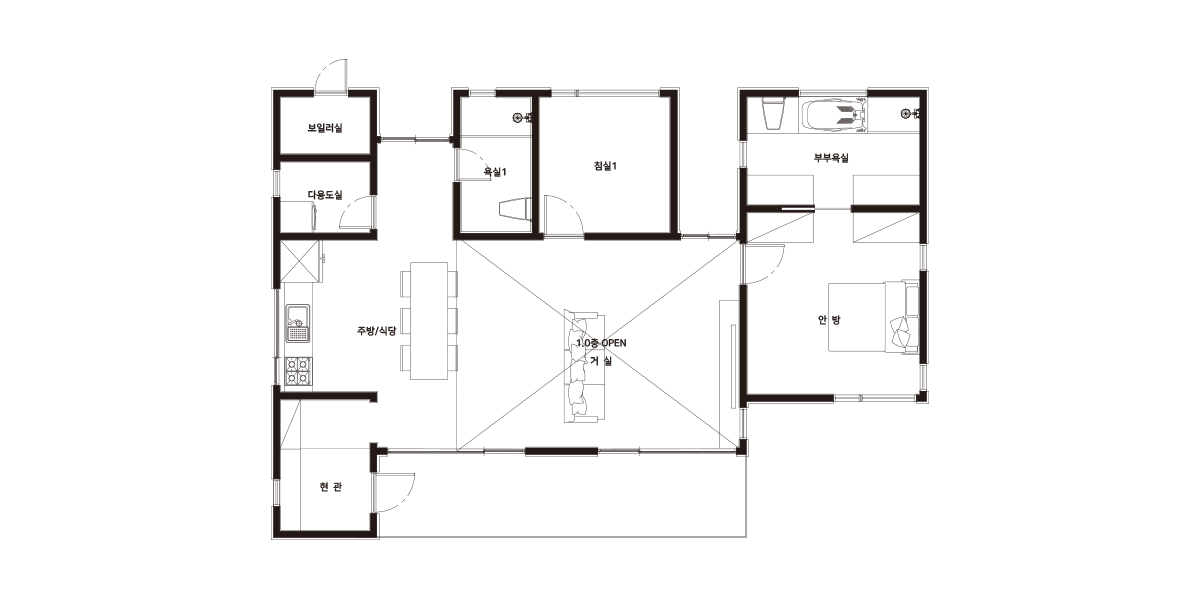
Design concept04 공간구성
Floor Plan| 1F | 1층 구성: 현관, 거실, 주방/식당, 침실1, 욕실1, 안방, 부부욕실, 다용도실, 보일러실 |
|---|
| 2F | 2층 구성: - |
|---|