HOME - 지성갤러리 > 설계갤러리 Classic 38평형
충남 서산 구OO님
석재데크와 커다란 기둥이 웅장하고 고풍스러운 느낌을 준다.
전통 벽돌집 느낌과 현대적 감성을 접목시킨 설계가 특징이다.
01 외부투시도
Bird's-eye view
02 건축개요
Housing Summary| 총면적 | 125.74㎡ (38.03py) | 구조 | 경량목구조 |
|---|---|---|---|
| 1층면적 | 125.74㎡ (38.03py) | 지붕 | 금속기와 |
| 2층면적 | - | 외부마감 | 테라코트, 적벽돌, 적삼목, 화강석 |
| 3층면적 | - | 내부마감 | LG실크벽지, LG강화마루 |
| 1층포치 / 데크 | 9.87㎡ (2.98py) / 30.90㎡ (9.34py) | 창호 | 시스템창호 |
| 2층발코니 / 베란다 | - | 다락 / 거실오픈 | - |
| 3층발코니 / 베란다 | - |
03 설계컨셉
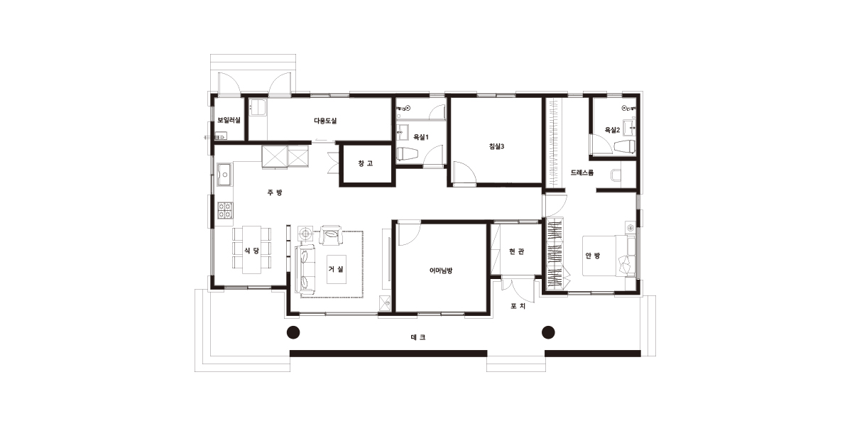
Design concept04 공간구성
Floor Plan| 1F | 1층 구성: 현관, 거실, 주방/식당, 안방, 드레스룸, 욕실1, 침실1, 침실2, 욕실2, 다용도실, 보일러실, 창고 |
|---|
| 2F | 2층 구성: - |
|---|