HOME - 지성갤러리 > 설계갤러리 Classic 45평형
인천 강화 윤OO님
건축주님의 라이프스타일을 고려한 내부 동선이 특징이다
세라믹 사이딩으로 포인트를 준 심플한 모던 스타일의 주택이다
01 외부투시도
Bird's-eye view
02 건축개요
Housing Summary| 총면적 | 148.84㎡ (45.03py) | 구조 | 경량목구조 |
|---|---|---|---|
| 1층면적 | 93.05㎡ (28.15py) | 지붕 | 아스팔트싱글 |
| 2층면적 | 55.79㎡ (16.88py) | 외부마감 | 테라코트, 세라믹사이딩, 파벽돌 |
| 3층면적 | - | 내부마감 | LG실크벽지, LG강화마루 |
| 1층포치 / 데크 | 12.57㎡ (3.80py) / 13.00㎡ (2.76py) | 창호 | 시스템창호 |
| 2층발코니 / 베란다 | 13.40㎡ (4.05py) | 다락 / 거실오픈 | - / 2층 오픈 |
| 3층발코니 / 베란다 | - |
03 설계컨셉
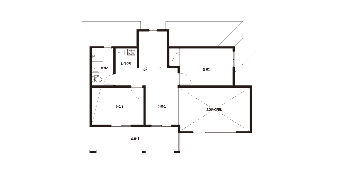
Design concept04 공간구성
Floor Plan| 1F | 1층 구성: 현관, 거실, 안방, 주방/식당, 다용도실, 욕실1, 부부욕실, 보일러실 |
|---|
| 2F | 2층 구성: 가족실, 침실1, 침실2, 간이주방, 욕실2, 발코니 |
|---|