HOME - 지성갤러리 > 설계갤러리 Mediterranean 38평형
경기 김포 김OO님
전면과 측면의 포치설치로 외부공간과의 연계성 강조
지중해풍의 고풍스러우면서도 세련된 디자인
01 외부투시도
Bird's-eye view
02 건축개요
Housing Summary| 총면적 | 127.73㎡ (38.63py) | 구조 | 경량목구조 |
|---|---|---|---|
| 1층면적 | 82.61㎡ (24.98py) | 지붕 | 스페니쉬기와 |
| 2층면적 | 45.12㎡ (13.65py) | 외부마감 | 테라코트(플렉시텍스), 파벽돌 |
| 3층면적 | - | 내부마감 | LG실크벽지, LG강화마루 |
| 1층포치 / 데크 | 6.61㎡ (1.99py) / 41.74㎡ (12.62py) | 창호 | 시스템창호 |
| 2층발코니 / 베란다 | 16.08㎡ (4.86py) | 다락 / 거실오픈 | - / 2층 오픈 |
| 3층발코니 / 베란다 | - |
03 설계컨셉
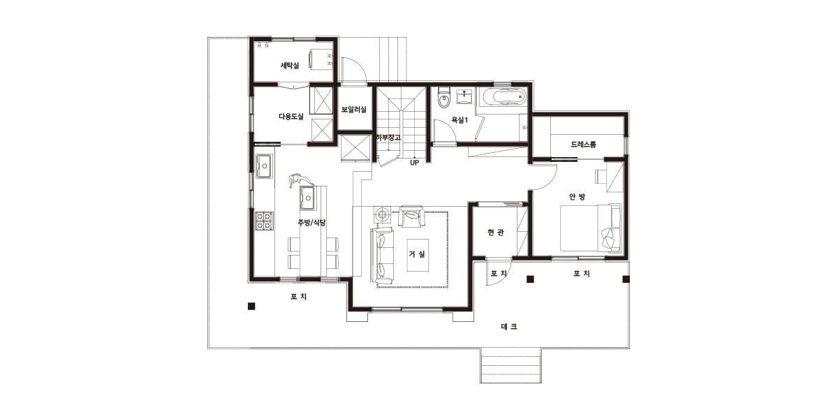
Design concept04 공간구성
Floor Plan| 1F | 1층 구성: 현관, 거실, 주방/식당, 다용도실, 세탁실, 보일러실, 욕실1, 안방, 드레스룸 |
|---|
| 2F | 2층 구성: 침실1, 드레스룸, 보조주방, 욕실2, 침실2, 발코니 |
|---|