HOME - 지성갤러리 > 설계갤러리 Modern 47평형
경남 진주 김OO님
가벽을 이용한 박스 형태의 입면안이 특징
징크 마감재를 통한 모던함을 강조
01 외부투시도
Bird's-eye view
02 건축개요
Housing Summary| 총면적 | 155.28㎡ (46.97py) | 구조 | 경량목구조 |
|---|---|---|---|
| 1층면적 | 100.99㎡ (30.55py) | 지붕 | 아스팔트싱글, 리얼징크 |
| 2층면적 | 54.29㎡ (16.42py) | 외부마감 | 테라코트(플렉시텍스), 파벽돌, 리얼징크 |
| 3층면적 | - | 내부마감 | LG실크벽지, LG강화마루 |
| 1층포치 / 데크 | 6.10㎡ (1.85py) / 17.00㎡ (5.14py) | 창호 | 시스템창호 |
| 2층발코니 / 베란다 | 18.75㎡ (5.67py) | 다락 / 거실오픈 | 16.80㎡(5.08py) |
| 3층발코니 / 베란다 | - |
03 설계컨셉
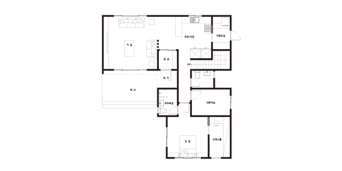
Design concept04 공간구성
Floor Plan| 1F | 1층 구성: 현관, 거실, 주방/식당, 다용도실, 안방, 드레스룸, 욕실1, 서재, 부부욕실 |
|---|
| 2F | 2층 구성: 가족실, 침실1, 침실2, 욕실2 |
|---|