HOME - 지성갤러리 > 설계갤러리 Classic 31평형
경기 화성 안OO님
· 파벽돌을 포인트로 아늑해보이는 클래식 스타일의 주택
· 다락공간을 침실로 공간활용 보완
01 외부투시도
Bird's-eye view
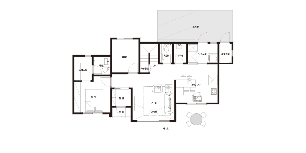
02 건축개요
Housing Summary| 총면적 | 101.11㎡ (30.58py) | 구조 | 경량목구조 |
|---|---|---|---|
| 1층면적 | 84.47㎡ (25.55py) | 지붕 | 아스팔트 슁글 |
| 2층면적 | 16.64㎡ (5.03py) | 외부마감 | 스타코, 파벽돌 |
| 3층면적 | - | 내부마감 | LG실크벽지, LG강화마루 |
| 1층포치 / 데크 | 1.20㎡ (0.36py) /22.39㎡ (6.77py) | 창호 | 시스템창호 |
| 2층발코니 / 베란다 | - | 다락 / 거실오픈 | - |
| 3층발코니 / 베란다 | - |
03 설계컨셉
Design concept04 공간구성
Floor Plan| 1F | 1층 구성: 침실1, 주방/식당, 거실, 욕실1, 다용도실, 안방, 욕실2, 드레스룸, 보일러실 |
|---|
| 2F | 2층 구성: 침실2 |
|---|