HOME - 지성갤러리 > 설계갤러리 Modern 39평형
강원 홍천 사OO님 (제44회 MBC건축박람회)
2층 내부 폴딩도어 설치로 공간의 가변성 확보
지붕에 징크를 사용하여 심플하고 모던한 느낌의 형태 부여
01 외부투시도
Bird's-eye view
02 건축개요
Housing Summary| 총면적 | 128.53㎡ (38.88py) | 구조 | 경량목구조 |
|---|---|---|---|
| 1층면적 | 98.06㎡ (29.66py) | 지붕 | 알루미늄징크 |
| 2층면적 | 30.47㎡ (9.22py) | 외부마감 | 세라믹사이딩, 파벽돌, 목재사이딩 |
| 3층면적 | - | 내부마감 | LG실크벽지, LG강화마루 |
| 1층포치 / 데크 | 12.18㎡ (3.68py) / 27.45㎡ (8.30py) | 창호 | 시스템창호 |
| 2층발코니 / 베란다 | 6.84㎡ (2.07py) | 다락 / 거실오픈 | - / 2층 오픈 |
| 3층발코니 / 베란다 | - |
03 설계컨셉
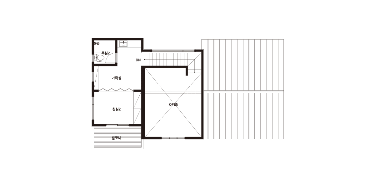
Design concept04 공간구성
Floor Plan| 1F | 1층 구성: 현관, 거실, 주방/식당, 다용도실, 안방, 드레스룸, 욕실1, 보일러실, 침실1 |
|---|
| 2F | 2층 구성: 침실2, 가족실, 욕실2 |
|---|