HOME - 지성갤러리 > 설계갤러리 Classic 41평형
충남 아산 안OO님
순백색 스타코에 푸른 박공지붕으로 멋을 더한 클래식 주택
1층은 부모님을 위한 공간, 2층은 자녀세대를 위한 공간으로 계획
01 외부투시도
Bird's-eye view
02 건축개요
Housing Summary| 총면적 | 134.49㎡ (40.68py) | 구조 | 경량목구조 |
|---|---|---|---|
| 1층면적 | 88.00㎡ (26.62py) | 지붕 | 아스팔트싱글 |
| 2층면적 | 46.49㎡ (14.06py) | 외부마감 | 테라코트(플렉시텍스), 파벽돌 |
| 3층면적 | - | 내부마감 | LG실크벽지, LG강화마루 |
| 1층포치 / 데크 | 6.22㎡ (1.88py) / 19.16㎡ (5.80py) | 창호 | 시스템창호 |
| 2층발코니 / 베란다 | 2.00㎡ (0.61py) | 다락 / 거실오픈 | - / 1층 오픈 |
| 3층발코니 / 베란다 | - |
03 설계컨셉
Design concept04 공간구성
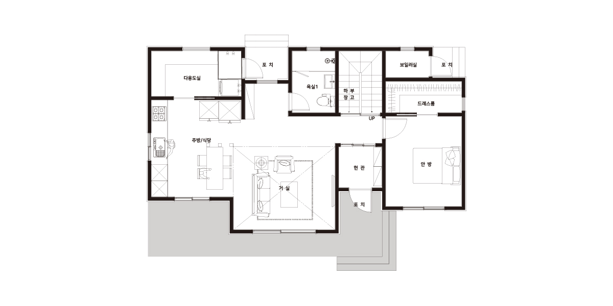
Floor Plan| 1F | 1층 구성: 현관, 거실, 주방/식당, 안방, 드레스룸, 욕실1, 다용도실, 보일러실, 창고 |
|---|
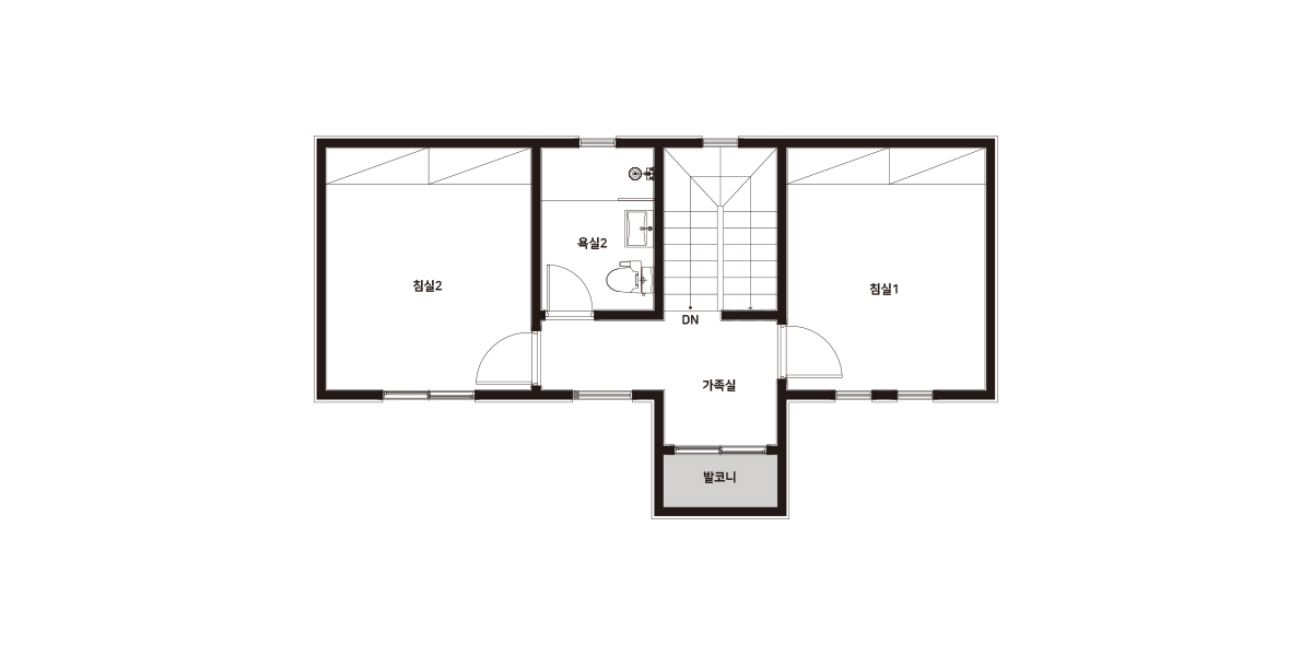
| 2F | 2층 구성: 침실1, 침실2, 가족실, 욕실2 |
|---|