HOME - 지성갤러리 > 설계갤러리 Modern 64평형
목조 모던
대리석을 사용하여 웅장한 외관 연출
건축주의 요청에 의해 당구시설 별도 설치
01 외부투시도
Bird's-eye view
02 건축개요
Housing Summary| 총면적 | 212.22㎡ (64.2py) | 구조 | 경량목구조 |
|---|---|---|---|
| 1층면적 | 135.45㎡ (40.97py) | 지붕 | 평슬라브 |
| 2층면적 | 76.77㎡ (23.22py) | 외부마감 | 스타코, 인조석, 탄화목사이딩 |
| 3층면적 | - | 내부마감 | LG실크벽지, LG강화마루 |
| 1층포치 / 데크 | 8.12㎡ (2.46py) | 창호 | 시스템창호 |
| 2층발코니 / 베란다 | 44.38㎡ (13.42py) | 다락 / 거실오픈 | 12.96㎡ (3.92py) / 1.5층 오픈 |
| 3층발코니 / 베란다 | - |
03 설계컨셉
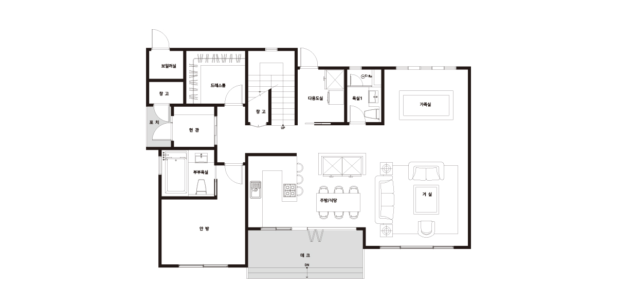
Design concept04 공간구성
Floor Plan| 1F | 1층 구성: 현관, 거실, 주방, 식당, 창고, 안방, 드레스룸, 부부욕실, 다용도실, 보일러실, 욕실1, 당구장 |
|---|
| 2F | 2층 구성: 침실1, 침실2, 침실3, 욕실2, 가족실 |
|---|