HOME - 지성갤러리 > 설계갤러리 Classic 46평형
목조 클래식
넓은 거실과 주방의 전면배치로 외부공간과의 연계성 강조
클래식하면서도 일본식 모던의 느낌을 느낄 수 있는 세련된 디자인
01 외부투시도
Bird's-eye view
02 건축개요
Housing Summary| 총면적 | 150.98㎡ (45.67py) | 구조 | 경량목구조 |
|---|---|---|---|
| 1층면적 | 90.89㎡ (27.49py) | 지붕 | 아스팔트싱글 |
| 2층면적 | 60.09㎡ (18.18py) | 외부마감 | 스타코, 파벽돌, 탄화목사이딩 |
| 3층면적 | - | 내부마감 | LG실크벽지, LG강화마루 |
| 1층포치 / 데크 | 11.12㎡ (3.36py) / 20.51㎡ (6.20py) | 창호 | 시스템창호 |
| 2층발코니 / 베란다 | 20.53㎡ (6.21py) | 다락 / 거실오픈 | - |
| 3층발코니 / 베란다 | - |
03 설계컨셉
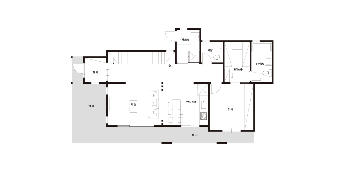
Design concept04 공간구성
Floor Plan| 1F | 1층 구성: 현관, 거실, 주방, 식당, 안방, 드레스룸, 부부욕실, 다용도실, 욕실1 |
|---|
| 2F | 2층 구성: 침실1, 욕실2, 가족실, 손님방, 영화관 |
|---|