HOME - 지성갤러리 > 설계갤러리 Modern 51평형
수익형 RC 모던
전면부에 넓직한 발코니를 두어 전망 확보
붉은 파벽돌로 포인트 벽을 두어 입면의 단조로움에서 탈피
01 외부투시도
Bird's-eye view
02 건축개요
Housing Summary| 총면적 | 166.98㎡ (50.51py) | 구조 | 철근콘크리트조 |
|---|---|---|---|
| 1층면적 | 105.57㎡ (31.93py) | 지붕 | 평슬라브 |
| 2층면적 | 61.41㎡ (18.58py) | 외부마감 | 스타코, 파벽돌, 인조석 |
| 3층면적 | - | 내부마감 | LG실크벽지, LG강화마루 |
| 1층포치 / 데크 | 5.95㎡ (1.80py) / 21.85㎡ (6.61py) | 창호 | 시스템창호 |
| 2층발코니 / 베란다 | 44.27㎡ (13.39py) | 다락 / 거실오픈 | - / 1.5층 오픈 |
| 3층발코니 / 베란다 | - |
03 설계컨셉
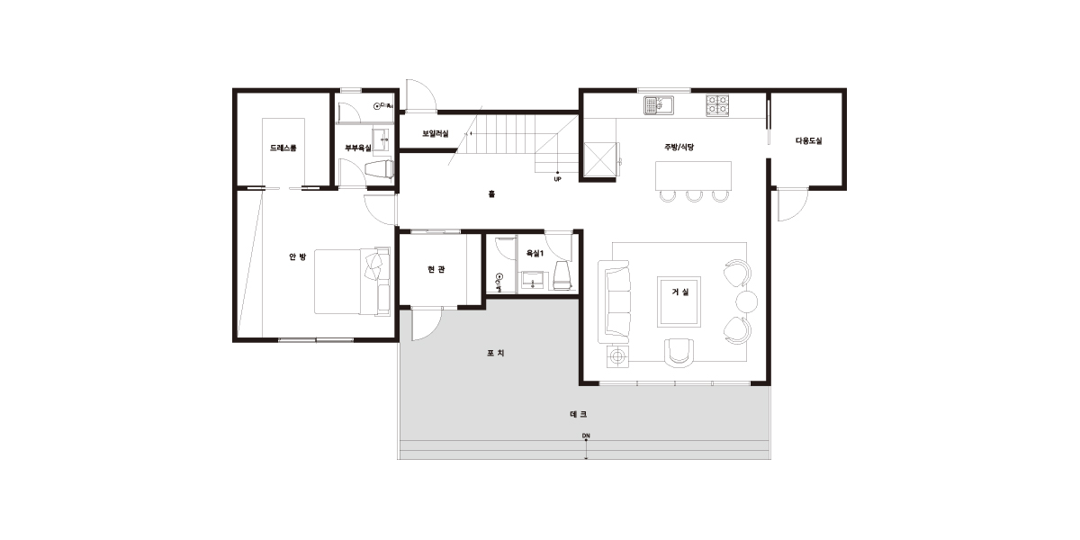
Design concept04 공간구성
Floor Plan| 1F | 1층 구성: 현관, 거실, 주방/식당, 다용도실, 안방, 드레스룸, 부부욕실, 욕실1, 보일러실 |
|---|
| 2F | 2층 구성: 다과실, 침실, 드레스룸, 욕실2 |
|---|