HOME - 지성갤러리 > 설계갤러리 Modern 64평형
목조 모던
웅장한 외관을 지닌 일본형 모던 스타일
식당과 연결된 포치를 통해 공간 활용성 향상
01 외부투시도
Bird's-eye view
02 건축개요
Housing Summary| 총면적 | 210.62㎡ (63.71py) | 구조 | 경량목구조 |
|---|---|---|---|
| 1층면적 | 127.98㎡ (38.71py) | 지붕 | 평기와 |
| 2층면적 | 82.64㎡ (25.00py) | 외부마감 | 스타코, 탄화목사이딩, 세라믹사이딩 |
| 3층면적 | - | 내부마감 | LG실크벽지, LG강화마루 |
| 1층포치 / 데크 | 22.91㎡ (6.93py) / 12.37㎡ (3.74py) | 창호 | 시스템창호 |
| 2층발코니 / 베란다 | 12.62㎡ (3.74py) | 다락 / 거실오픈 | 11.88㎡ (3.59py) / 2층 오픈 |
| 3층발코니 / 베란다 | - |
03 설계컨셉
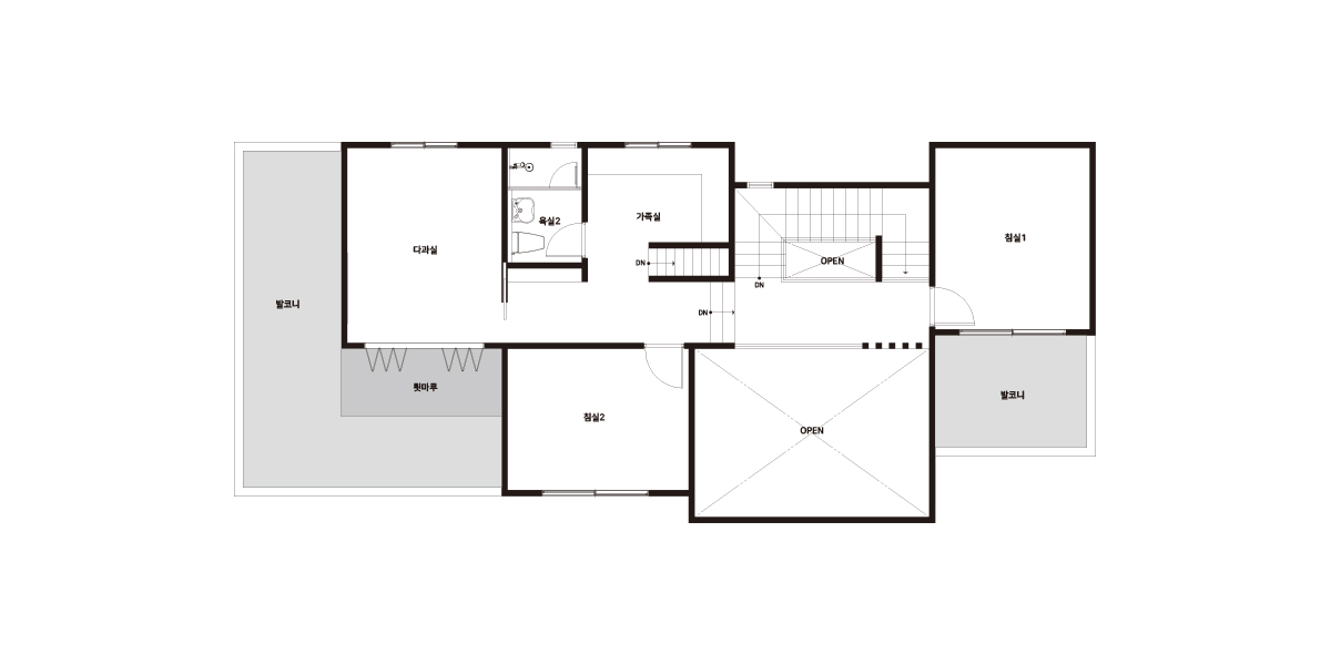
Design concept04 공간구성
Floor Plan| 1F | 1층 구성: 현관, 거실, 주방, 식당, 창고, 안방, 드레스룸, 부부욕실, 다용도실, 보일러실, 욕실1, 서재 |
|---|
| 2F | 2층 구성: 침실1, 침실2, 욕실2, 가족실, 다과실 |
|---|