HOME - 지성갤러리 > 설계갤러리 Modern 44평형
목조 모던
거실과 주방의 분리에 따른 각 실의 독립성 확보
징크의 도시스러운 이미지와 세라믹사이딩의 고급스러운 느낌의 조화
01 외부투시도
Bird's-eye view
02 건축개요
Housing Summary| 총면적 | 145.55㎡ (44.03py) | 구조 | 경량목구조 |
|---|---|---|---|
| 1층면적 | 96.80㎡ (29.28py) | 지붕 | 리얼징크 |
| 2층면적 | 48.75㎡ (14.75py) | 외부마감 | 리얼징크, 세라믹사이딩, 스타코 |
| 3층면적 | - | 내부마감 | LG실크벽지, LG강화마루 |
| 1층포치 / 데크 | 2.70㎡ (0.82py) / 18.81㎡ (5.69py) | 창호 | 시스템창호 |
| 2층발코니 / 베란다 | 5.76㎡ (1.74py) | 다락 / 거실오픈 | - |
| 3층발코니 / 베란다 | - |
03 설계컨셉
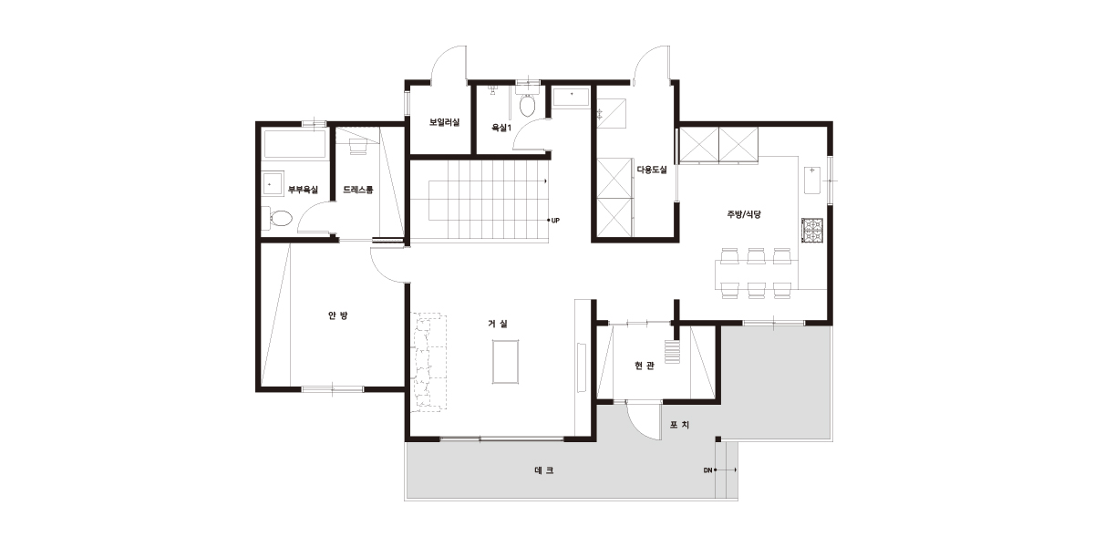
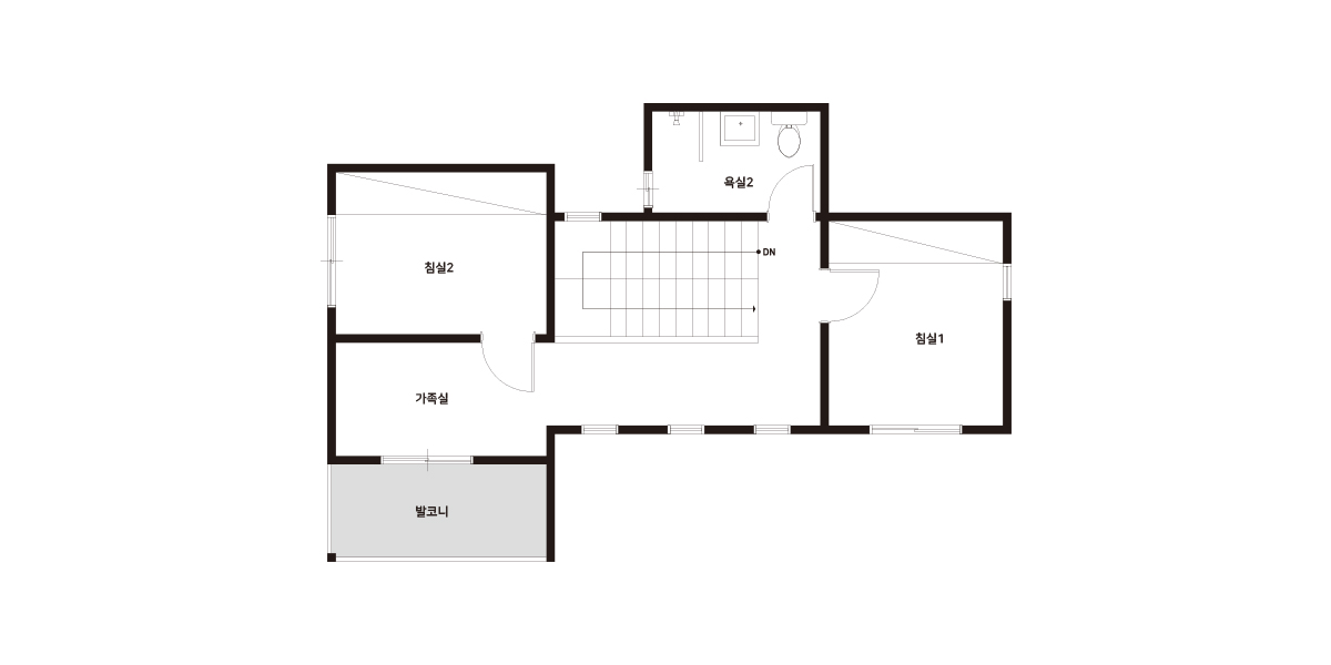
Design concept04 공간구성
Floor Plan| 1F | 1층 구성: 현관, 거실, 주방, 식당, 안방, 드레스룸, 부부욕실, 다용도실, 보일러실, 욕실1 |
|---|
| 2F | 2층 구성: 침실1, 침실2, 욕실2, 가족실 |
|---|