HOME - 지성갤러리 > 설계갤러리 Modern 54평형
강원 원주 석OO님 (서울건축박람회)
5인 가족을 위한 모던 주택
대지 특성을 고려하여 전면과 후면의 특색 있는 입면계획
01 외부투시도
Bird's-eye view
02 건축개요
Housing Summary| 총면적 | 179.26㎡ (54.23py) | 구조 | 경량목구조 |
|---|---|---|---|
| 1층면적 | 93.47㎡ (28.27py) | 지붕 | 알루미늄징크 |
| 2층면적 | 85.79㎡ (25.95py) | 외부마감 | 세라믹사이딩, 알루미늄징크 |
| 3층면적 | - | 내부마감 | LG실크벽지, LG강화마루 |
| 1층포치 / 데크 | 9.50㎡ (2.87py) / 52.25㎡ (15.81py) | 창호 | 시스템창호 |
| 2층발코니 / 베란다 | 7.68㎡ (2.32py) | 다락 / 거실오픈 | - / 1.5층 오픈 |
| 3층발코니 / 베란다 | - |
03 설계컨셉
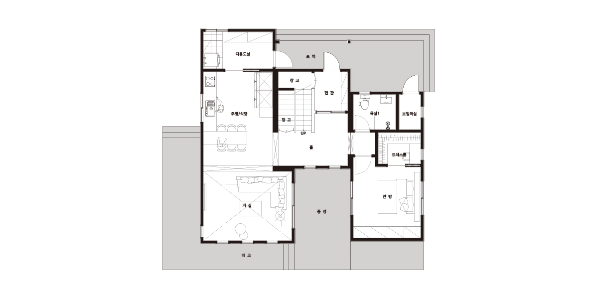
Design concept04 공간구성
Floor Plan| 1F | 1층 구성: 현관, 거실, 주방/식당, 다용도실, 안방, 욕실1, 드레스룸 |
|---|
| 2F | 2층 구성: 가족실, 침실1, 침실2, 침실3, 욕실2 |
|---|