HOME - 지성갤러리 > 설계갤러리 Modern 65평형
충남 금산 최OO님
건축주님의 라이프스타일을 반영한 넓은 공간 설계
2층 발코니에 툇마루에 설치하여 발코니의 활용성 증대
01 외부투시도
Bird's-eye view
02 건축개요
Housing Summary| 총면적 | 213.35㎡ (64.54py) | 구조 | 경량목구조 |
|---|---|---|---|
| 1층면적 | 123.03㎡ (37.22py) | 지붕 | 세라믹지붕재 |
| 2층면적 | 90.32㎡ (27.32py) | 외부마감 | 세라믹사이딩, 테라코트(플렉시텍스) |
| 3층면적 | - | 내부마감 | LG실크벽지, LG강화마루 |
| 1층포치 / 데크 | 2.38 (0.72py) | 창호 | 시스템창호 |
| 2층발코니 / 베란다 | 12.19㎡ (3.69py) | 다락 / 거실오픈 | 12.96㎡ (3.92py) / 2층 오픈 |
| 3층발코니 / 베란다 | - |
03 설계컨셉
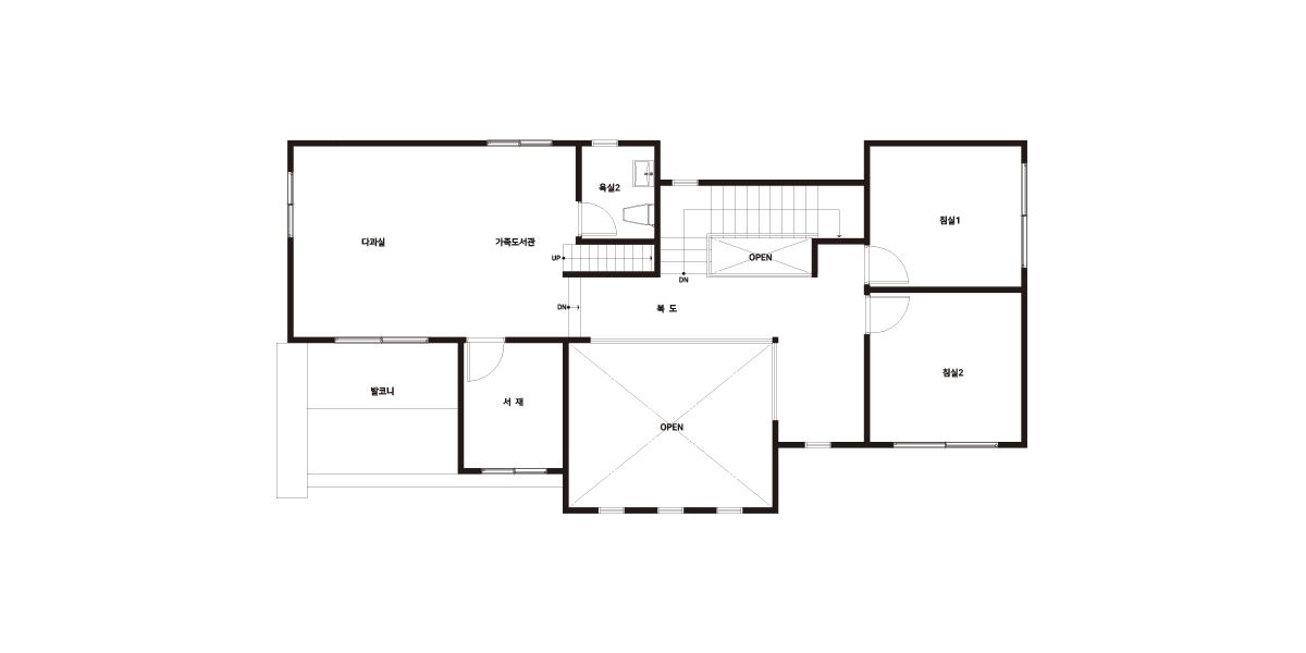
Design concept04 공간구성
Floor Plan| 1F | 1층 구성: 현관, 거실, 주방/식당, 다용도실, 안방, 드레스룸, 부부욕실, 미싱룸, 욕실1, 창고, 보일러실 |
|---|
| 2F | 2층 구성: 침실1, 침실2, 욕실2, 다과실, 가족도서관, 서재 |
|---|