HOME - 지성갤러리 > 설계갤러리 Modern 33평형
목조 모던
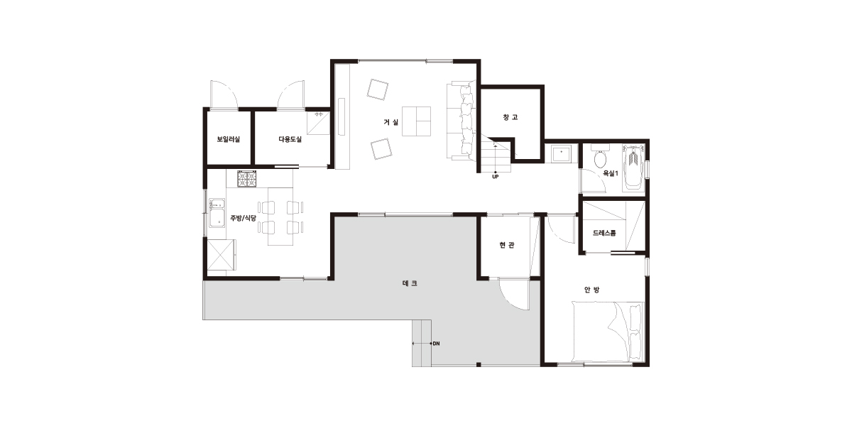
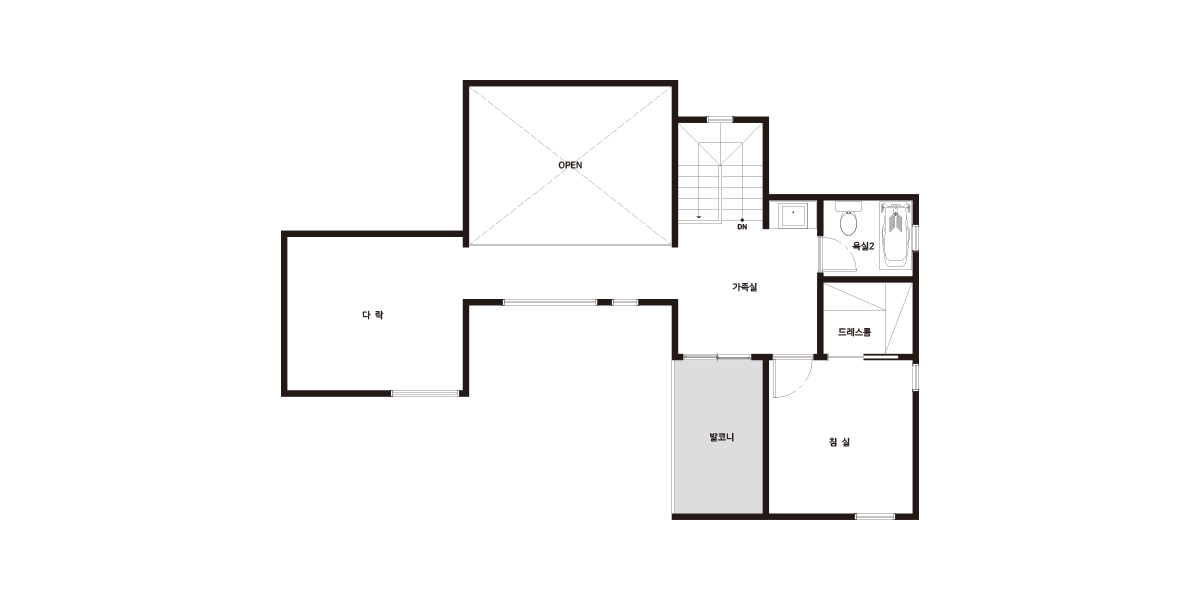
거실 2층 오픈으로 개방감 확보 및 2층과의 소통 가능한 구조
'ㄷ'자 형태 주택으로 주방 및 거실에서 모두 이용가능한 실용적인 중앙 데크
01 외부투시도
Bird's-eye view
02 건축개요
Housing Summary| 총면적 | 110.60㎡ (33.46py) | 구조 | 경량목구조 |
|---|---|---|---|
| 1층면적 | 77.10㎡ (23.32py) | 지붕 | 알루미늄징크 |
| 2층면적 | 33.50㎡ (10.13py) | 외부마감 | 스타코, 파벽돌, 목재사이딩 |
| 3층면적 | - | 내부마감 | LG실크벽지, LG강화마루 |
| 1층포치 / 데크 | 3.00㎡ (0.91py) / 23.53㎡ (7.12py) | 창호 | 시스템창호 |
| 2층발코니 / 베란다 | 7.00㎡ (2.12py) | 다락 / 거실오픈 | 14.00㎡ (4.24py) / 2층 오픈 |
| 3층발코니 / 베란다 | - |
03 설계컨셉
Design concept04 공간구성
Floor Plan| 1F | 1층 구성: 현관, 거실, 주방/식당, 다용도실, 안방, 드레스룸, 욕실1, 창고, 보일러실 |
|---|
| 2F | 2층 구성: 가족실, 침실1, 드레스룸, 욕실2, 다락 |
|---|