HOME - 지성갤러리 > 설계갤러리 Mediterranean 40평형
목조 지중해
고풍스러운 지중해풍 스타일
전면과 측면의 포치설치로 외부공간과의 연계성 강조
거실의 2층 오픈으로 시원한 공간감 연출
01 외부투시도
Bird's-eye view
02 건축개요
Housing Summary| 총면적 | 132.67㎡ (40.13py) | 구조 | 경량목구조 |
|---|---|---|---|
| 1층면적 | 100.14㎡ (30.29py) | 지붕 | 스페니쉬기와 |
| 2층면적 | 32.53㎡ (9.84py) | 외부마감 | 스타코, 인조석, 목재사이딩 |
| 3층면적 | - | 내부마감 | LG실크벽지, LG강화마루 |
| 1층포치 / 데크 | 9.30㎡ (2.81py) / 20.55㎡ (6.22py) | 창호 | 시스템창호 |
| 2층발코니 / 베란다 | 3.30㎡ (1.00py) | 다락 / 거실오픈 | - / 2층 오픈 |
| 3층발코니 / 베란다 | - |
03 설계컨셉
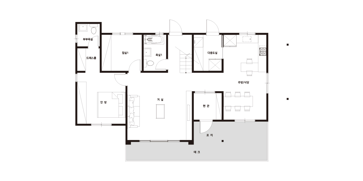
Design concept04 공간구성
Floor Plan| 1F | 1층 구성: 현관, 거실, 주방/식당, 다용도실, 안방, 드레스룸, 부부욕실, 욕실1, 보일러실 |
|---|
| 2F | 2층 구성: 가족실, 침실2, 욕실2 |
|---|