HOME - 지성갤러리 > 설계갤러리 Classic 45평형
경남 의령 황OO님
클래식하면서도 일본식 모던스타일의 세련된 디자인
건축주 라이프 스타일에 맞는 안방의 짜임새있는 구성
01 외부투시도
Bird's-eye view
02 건축개요
Housing Summary| 총면적 | 147.73㎡ (44.69py) | 구조 | 경량목구조 |
|---|---|---|---|
| 1층면적 | 112.37㎡ (33.99py) | 지붕 | 아스팔트싱글 |
| 2층면적 | 35.36㎡ (10.70py) | 외부마감 | 스타코, 파벽돌, 목재사이딩 |
| 3층면적 | - | 내부마감 | LG실크벽지, LG강화마루 |
| 1층포치 / 데크 | 2.00㎡ (0.61py) / 31.70㎡ (9.59py) | 창호 | 시스템창호 |
| 2층발코니 / 베란다 | 5.40㎡ (1.63py) | 다락 / 거실오픈 | - / 2층 오픈 |
| 3층발코니 / 베란다 | - |
03 설계컨셉
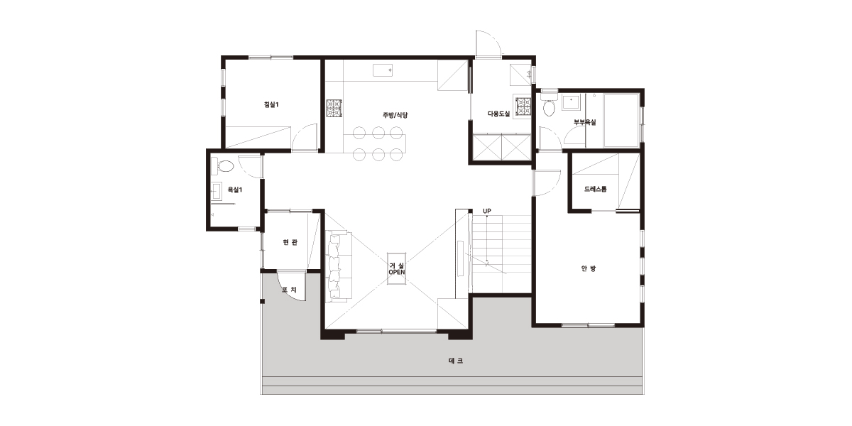
Design concept04 공간구성
Floor Plan| 1F | 1층 구성: 현관, 거실, 주방/식당, 다용도실, 안방, 드레스룸, 부부욕실, 침실1, 욕실1 |
|---|
| 2F | 2층 구성: 가족실, 침실2, 욕실2 |
|---|