HOME - 지성갤러리 > 설계갤러리 Modern 294평형
수익형 RC 모던
4층으로 구성된 수익형 모델
도시적인 외형이 돋보이는 디자인
01 외부투시도
Bird's-eye view
02 건축개요
Housing Summary| 총면적 | 971.55㎡ (293.89py) | 구조 | 철근콘크리트조 |
|---|---|---|---|
| 1층면적 | 245.76㎡ (74.34py) | 지붕 | 평슬라브 |
| 2층면적 | 223.93㎡ (67.74py) | 외부마감 | 알루미늄징크, 스타코, 파벽돌, 인조석 |
| 3층면적 | 250.93㎡ (75.91py) / 4층면적 : 250.93㎡ (75.91py) | 내부마감 | 수성페인트, LG실크벽지, LG강화마루 |
| 1층포치 / 데크 | - | 창호 | 시스템창호 |
| 2층발코니 / 베란다 | - | 다락 / 거실오픈 | - |
| 3층발코니 / 베란다 | - |
03 설계컨셉
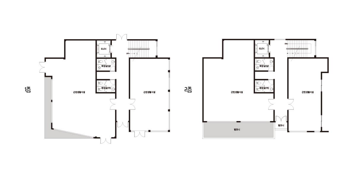
Design concept04 공간구성
Floor Plan| 1F | 1층 구성: 근린생활시설, 화장실 (1,2층) |
|---|
| 2F | 2층 구성: 근린생활시설, 화장실 (3,4층) |
|---|