HOME - 지성갤러리 > 설계갤러리 Modern 210평형
수익형 RC 모던
벽돌외장을 통하여 모던하면서도 클래식한 이미지 연출
층간 발코니 설치를 통해 개방감 향상
01 외부투시도
Bird's-eye view
02 건축개요
Housing Summary| 총면적 | 692.82㎡ (209.58py) | 구조 | 철근콘크리트조 |
|---|---|---|---|
| 1층면적 | 196.56㎡ (59.46py) | 지붕 | 알루미늄징크 |
| 2층면적 | 165.42㎡ (50.04py) | 외부마감 | 파벽돌, 탄화목사이딩 |
| 3층면적 | 165.42㎡ (50.04py) / 4층면적 : 165.42㎡ (50.04py) | 내부마감 | 수성페인트, LG실크벽지, LG강화마루 |
| 1층포치 / 데크 | - | 창호 | 시스템창호 |
| 2층발코니 / 베란다 | - | 다락 / 거실오픈 | - |
| 3층발코니 / 베란다 | - |
03 설계컨셉
Design concept04 공간구성
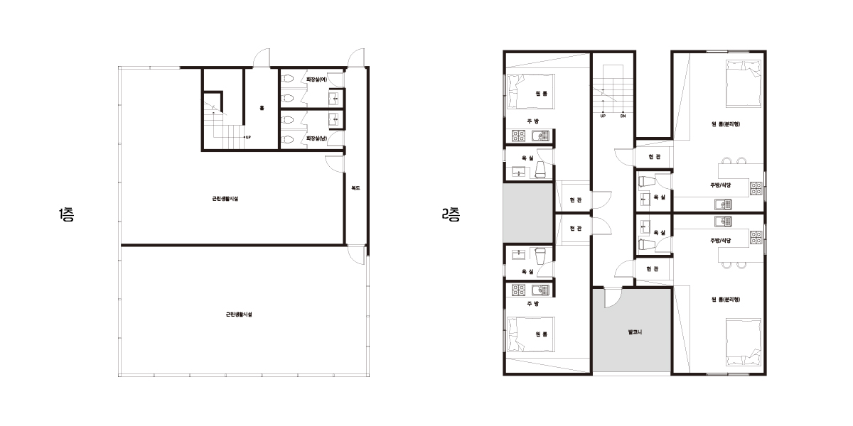
Floor Plan| 1F | 1층 구성: 근린생활시설, 화장실, 복도, 홀 / 2층 구성: 원룸 2세대, 분리형 원룸 2세대 |
|---|
| 2F | 2층 구성: X / 3층 구성: 원룸 2세대, 분리형 원룸 2세대 4층 구성: 현관, 거실, 주방/식당, 창고, 안방, 드레스룸, 부부욕실, 다용도실, 침실1, 침실2, 욕실1 |
|---|