HOME - 지성갤러리 > 설계갤러리 Modern 119평형
수익형 RC 모던
사용자를 위해 카페와 주거의 동선을 분리
심플한 외관에 징크와 벽돌로 포인트를 더함
01 외부투시도
Bird's-eye view
02 건축개요
Housing Summary| 총면적 | 400.44㎡ (121.13py) | 구조 | 철근콘크리트조 |
|---|---|---|---|
| 1층면적 | 133.48㎡ (40.38py) | 지붕 | 평슬라브 |
| 2층면적 | 130.18㎡ (39.38py) | 외부마감 | 알루미늄징크, 스타코 |
| 3층면적 | 130.18㎡ (39.38py) | 내부마감 | LG실크벽지, LG강화마루 |
| 1층포치 / 데크 | 발코니 : 6.60㎡ (2.00py) | 창호 | 시스템창호 |
| 2층발코니 / 베란다 | - | 다락 / 거실오픈 | - |
| 3층발코니 / 베란다 | - |
03 설계컨셉
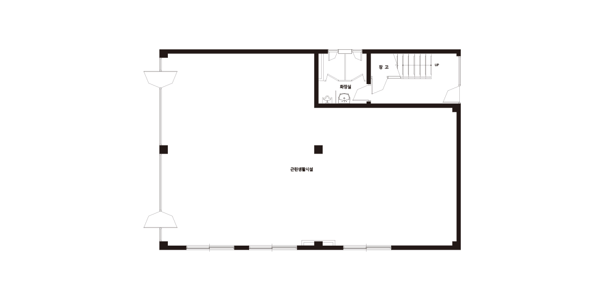
Design concept04 공간구성
Floor Plan| 1F | 1층 구성: 근린생활시성, 화장실 |
|---|
| 2F | 2층 구성: 임대세대1 - 현관, 거실, 주방, 다용도실, 침실1, 침실2, 욕실 / 임대세대2 - 현관, 거실, 주방, 다용도실, 침실, 욕실 3층 구성: 주인세대 - 현관, 거실, 주방, 식당, 다용도실, 안방, 부부욕실, 침실1, 침실2, 욕실 |
|---|