HOME - 지성갤러리 > 설계갤러리 Modern 93평형
수익형 RC 모던
1층 근린생활시설, 2층 원룸, 3층 주인세대인 수익형 모델
도시적인 이미지와 세련된 형태의 수익형 모델
01 외부투시도
Bird's-eye view
02 건축개요
Housing Summary| 총면적 | 307.99㎡ (93.17py) | 구조 | 철근콘크리트조 |
|---|---|---|---|
| 1층면적 | 107.25㎡ (32.44py) | 지붕 | 평슬라브 |
| 2층면적 | 101.91㎡ (30.83py) | 외부마감 | 노출콘크리트, 리얼징크, 파벽돌 |
| 3층면적 | 98.83㎡ (29.90py) | 내부마감 | 수성페인트, LG실크벽지, LG강화마루 |
| 1층포치 / 데크 | - | 창호 | 시스템창호 |
| 2층발코니 / 베란다 | - | 다락 / 거실오픈 | - |
| 3층발코니 / 베란다 | - |
03 설계컨셉
Design concept04 공간구성
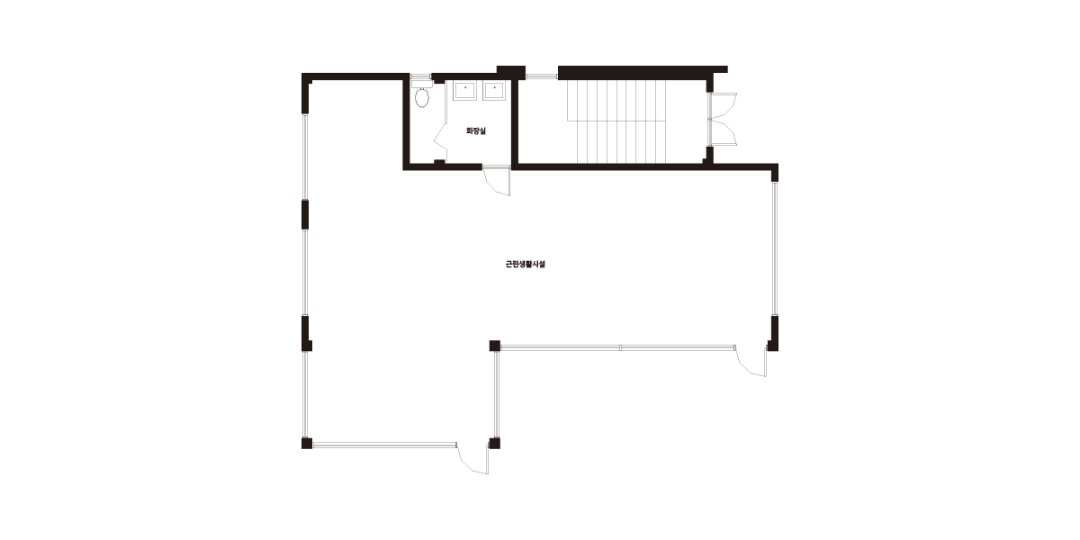
Floor Plan| 1F | 1층 구성: 근린생활시설, 화장실 |
|---|
| 2F | 2층 구성: 임대세대 1,2 - 현관, 거실, 주방, 침실, 욕실 / 3층 구성: 주인세대 - 현관, 거실, 주방, 식당, 침실1, 침실2, 욕실 |
|---|