HOME - 지성갤러리 > 설계갤러리 Modern 92평형
수익형 목조 모던
각 실별 전망 확보
1층 근린생활시설, 2층 펜션으로 설계되어 있는 수익형 모델
01 외부투시도
Bird's-eye view
02 건축개요
Housing Summary| 총면적 | 303.77㎡ (91.89py) | 구조 | 철근콘크리트조 |
|---|---|---|---|
| 1층면적 | 162.02㎡ (49.01py) | 지붕 | 평슬라브 |
| 2층면적 | 141.75㎡ (42.88py) | 외부마감 | 노출콘크리츠, 알루미늄징크, 스타코, 파벽돌, 탄화목사이딩 |
| 3층면적 | - | 내부마감 | LG실크벽지, LG강화마루 |
| 1층포치 / 데크 | 26.36㎡ (7.97py) | 창호 | 시스템창호 |
| 2층발코니 / 베란다 | 44.92㎡ (13.59py) | 다락 / 거실오픈 | - |
| 3층발코니 / 베란다 | - |
03 설계컨셉
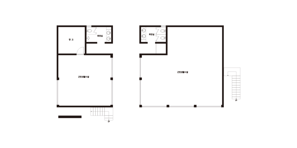
Design concept04 공간구성
Floor Plan| 1F | 1층 구성: 근린생활시설, 화장실, 창고 |
|---|
| 2F | 2층 구성: 객실1 - 현관, 거실, 주방, 식당, 침실1, 침실2, 욕실 / 객실2,3 - 현관, 거실, 주방, 식당, 침실, 욕실 |
|---|