HOME - 지성갤러리 > 설계갤러리 Modern 74평형
수익형 RC 모던
주거 시설을 좌우로 분리하여 사용
미래지향적인 느낌의 외관 연출
01 외부투시도
Bird's-eye view
02 건축개요
Housing Summary| 총면적 | 243.12㎡ (73.54py) | 구조 | 철근콘크리트조 |
|---|---|---|---|
| 1층면적 | 85.50㎡ (25.86py) | 지붕 | 평슬라브 |
| 2층면적 | 85.50㎡ (25.86py) | 외부마감 | 스타코, 탄화목사이딩 |
| 3층면적 | 72.12㎡ (21.82py) | 내부마감 | LG실크벽지, LG강화마루 |
| 1층포치 / 데크 | - | 창호 | 시스템창호 |
| 2층발코니 / 베란다 | 6.15㎡ (1.86py) | 다락 / 거실오픈 | - |
| 3층발코니 / 베란다 | - |
03 설계컨셉
Design concept04 공간구성
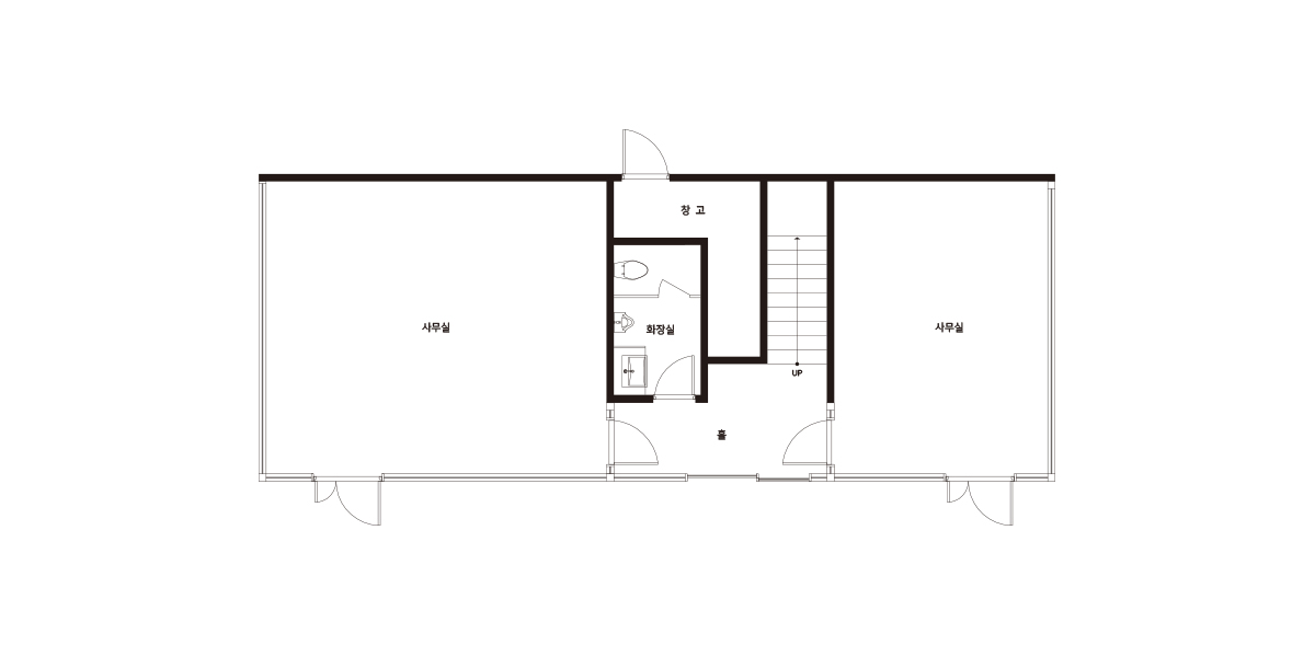
Floor Plan| 1F | 1층 구성: 근린생활시설, 홀, 화장실, 창고 |
|---|
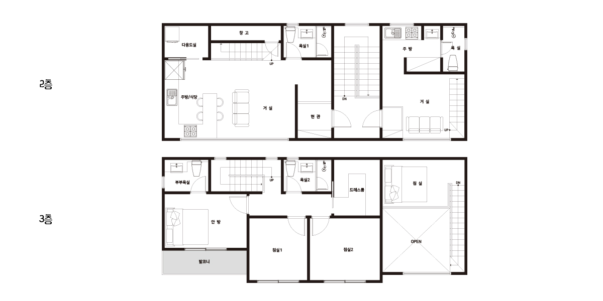
| 2F | 2층 구성: 임대세대1 - 현관, 거실, 주방, 식당, 창고, 다용도실, 욕실 / 임대세대2 - 현관, 거실, 주방, 욕실 3층 구성: 임대세대1 - 안방, 드레스룸, 부부욕실, 침실1, 침실2, 욕실2 / 임대세대2 - 침실 |
|---|