HOME - 지성갤러리 > 설계갤러리 Modern 71평형
수익형 RC 모던
2층으로 올라가는 계단을 따로 설계하여 남/여 숙소 구분
주방과 연계되어 야외 바베큐를 즐길 수 있는 넓게 구성된 야외 식당
01 외부투시도
Bird's-eye view
02 건축개요
Housing Summary| 총면적 | 237.90㎡ (71.96py) | 구조 | 철근콘크리트조 |
|---|---|---|---|
| 1층면적 | 120.70㎡ (36.51py) | 지붕 | 평슬라브 |
| 2층면적 | 117.20㎡ (35.45py) | 외부마감 | 스타코, 인조석 |
| 3층면적 | - | 내부마감 | LG실크벽지, LG강화마루 |
| 1층포치 / 데크 | 13.50㎡ (4.08py) | 창호 | 시스템창호 |
| 2층발코니 / 베란다 | 14.02㎡ (4.24py) | 다락 / 거실오픈 | - |
| 3층발코니 / 베란다 | - |
03 설계컨셉
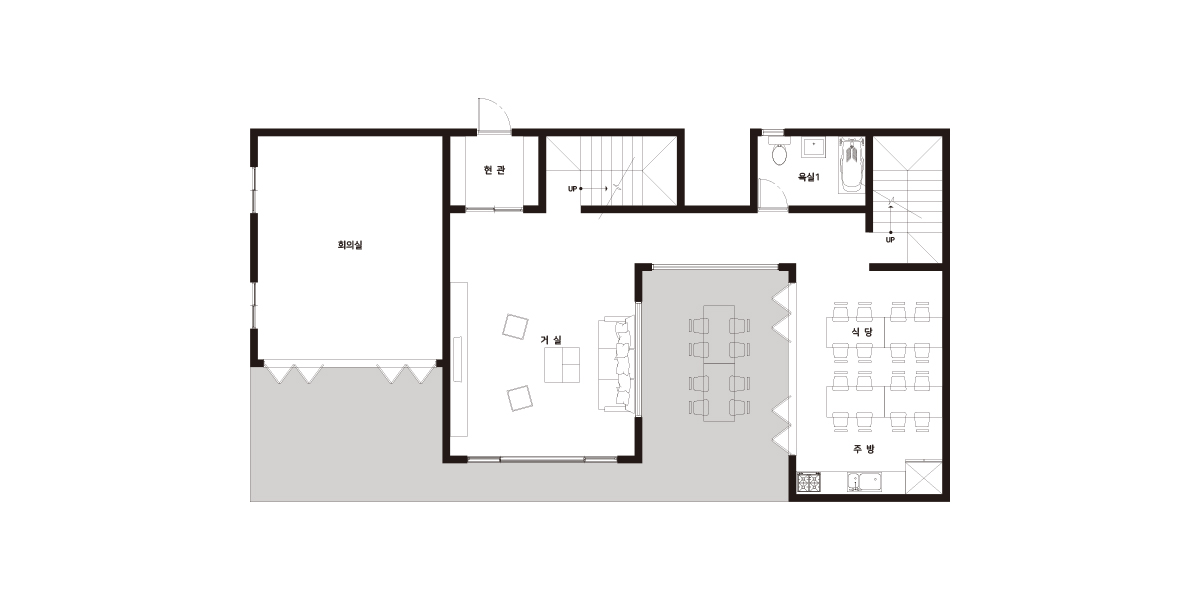
Design concept04 공간구성
Floor Plan| 1F | 1층 구성: 현관, 거실, 주방, 식당, 욕실1, 회의실, 야외식당 |
|---|
| 2F | 2층 구성: 침실1, 침실2, 침실3, 욕실2, 욕실3 |
|---|