HOME - 지성갤러리 > 설계갤러리 Modern 47평형
수익형 목조 모던
수익의 극대화를 이룰 수 있는 구성
징크의 도시적인 세련미와 스타코의 따뜻한 색감의 조화로워 보이는 외관
01 외부투시도
Bird's-eye view
02 건축개요
Housing Summary| 총면적 | 155.04㎡ (46.90py) | 구조 | 경량목구조 |
|---|---|---|---|
| 1층면적 | 87.60㎡ (26.50py) | 지붕 | 리얼징크 |
| 2층면적 | 67.44㎡ (20.40py) | 외부마감 | 스타코, 파벽돌 |
| 3층면적 | - | 내부마감 | LG실크벽지, LG강화마루 |
| 1층포치 / 데크 | 4.80㎡ (1.45py) / 36.90㎡ (11.16py) | 창호 | 시스템창호 |
| 2층발코니 / 베란다 | 12.60㎡ (3.81py) | 다락 / 거실오픈 | - / 2층 오픈 |
| 3층발코니 / 베란다 | - |
03 설계컨셉
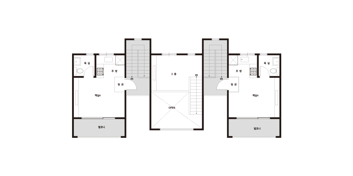
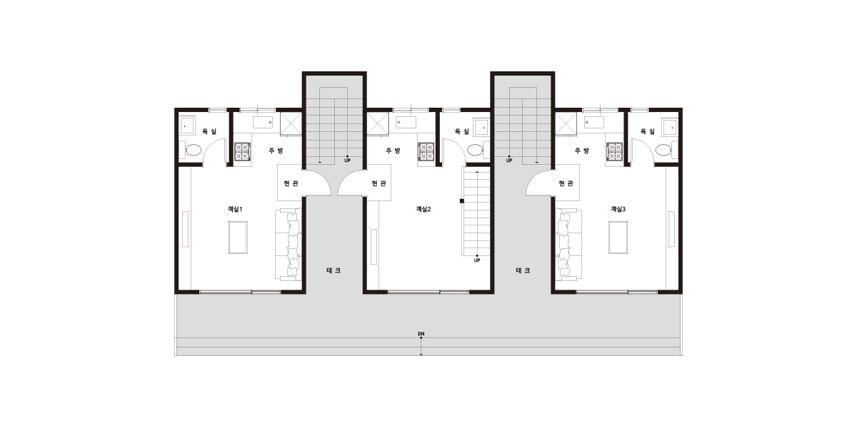
Design concept04 공간구성
Floor Plan| 1F | 1층 구성: 객실 1,2,3 - 현관, 거실, 주방, 욕실1 |
|---|
| 2F | 2층 구성: 객실 4,5 - 현관, 거실, 주방, 욕실1 |
|---|