HOME - 지성갤러리 > 설계갤러리 Modern 42평형
수익형 목조 모던
넓은 커뮤니티존이 있는 게스트하우스
게스트하우스 저녁파티를 위한 넓은 데크 계획
01 외부투시도
Bird's-eye view
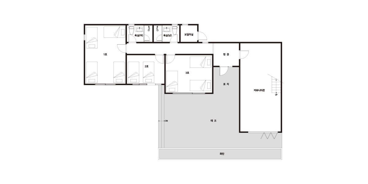
02 건축개요
Housing Summary| 총면적 | 139.68㎡ (42.25py) | 구조 | 경량목구조 |
|---|---|---|---|
| 1층면적 | 123.30㎡ (37.30py) | 지붕 | 알루미늄징크 |
| 2층면적 | 16.38㎡ (4.95py) | 외부마감 | 스타코, 파벽돌 |
| 3층면적 | - | 내부마감 | LG실크벽지, LG강화마루 |
| 1층포치 / 데크 | 4.61㎡ (1.39py) / 56.63㎡ (16.22py) | 창호 | 시스템창호 |
| 2층발코니 / 베란다 | 4.97㎡ (1.50py) | 다락 / 거실오픈 | 24.48㎡ (7.41py) / 2층 오픈 |
| 3층발코니 / 베란다 | - |
03 설계컨셉
Design concept04 공간구성
Floor Plan| 1F | 1층 구성: 현관, 욕실, 게스트룸 1호, 게스트룸 2호, 게스트룸3호, 커뮤니티존 |
|---|
| 2F | 2층 구성: 게스트룸 4호, 커뮤니티존 |
|---|