HOME - 지성갤러리 > 설계갤러리 Mediterranean 40평형
수익형 목조 지중해
붉은 스페니쉬기와와 파스텔톤 스타코 색상이 돋보이는 지중해풍 펜션
공용공간과 개인공간의 층별 분리로 프라이버시 확보
01 외부투시도
Bird's-eye view
02 건축개요
Housing Summary| 총면적 | 130.72㎡ (39.54py) | 구조 | 경량목구조 |
|---|---|---|---|
| 1층면적 | 71.16㎡ (21.53py) | 지붕 | 스페니쉬기와 |
| 2층면적 | 59.56㎡ (18.02py) | 외부마감 | 스타코, 파벽돌 |
| 3층면적 | - | 내부마감 | LG실크벽지, LG강화마루 |
| 1층포치 / 데크 | 6.54㎡ (1.98py) / 40.96㎡ (12.39py) | 창호 | 시스템창호 |
| 2층발코니 / 베란다 | 6.40㎡ (1.94py) | 다락 / 거실오픈 | - |
| 3층발코니 / 베란다 | - |
03 설계컨셉
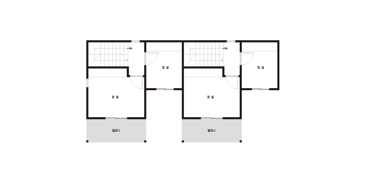
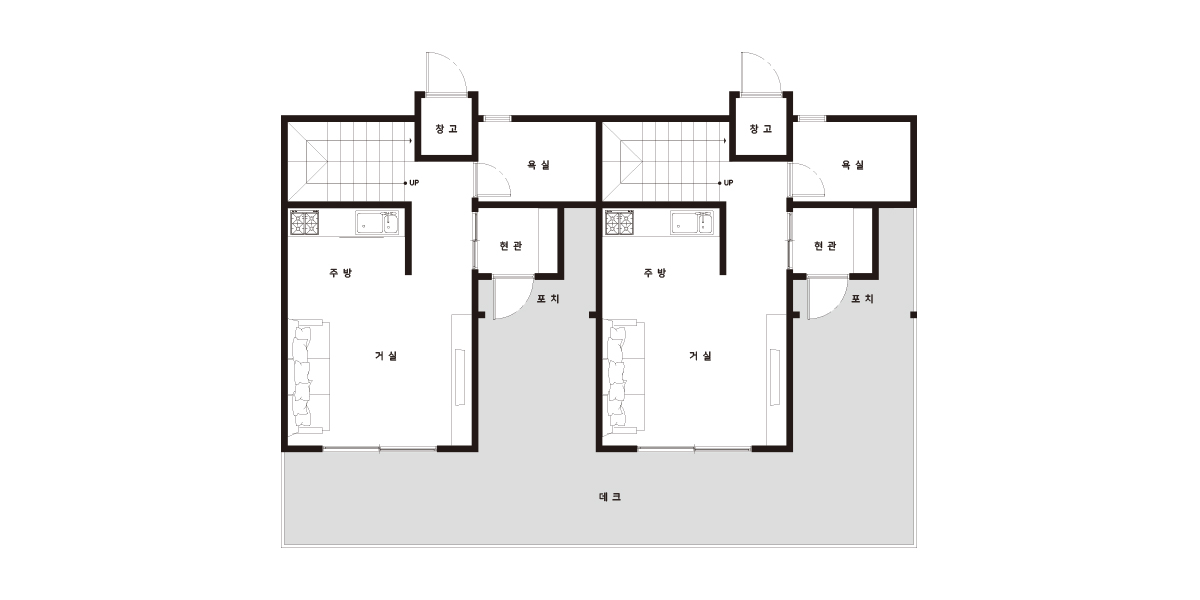
Design concept04 공간구성
Floor Plan| 1F | 1층 구성: 현관, 거실, 주방, 욕실1 |
|---|
| 2F | 2층 구성: 침실1, 침실2 |
|---|