HOME - 지성갤러리 > 설계갤러리 Modern 29평형
충북 천안 김OO님 (크레아 1-7)
화이트 스타코에 블랙 징크로 포인트를 준 모던주택
징크로 마감된 경사지붕과 사선으로 내려오는 벽체가 주택의 포인트
01 외부투시도
Bird's-eye view
02 건축개요
Housing Summary| 총면적 | 95.90㎡ (29.01py) | 구조 | 경량목구조 |
|---|---|---|---|
| 1층면적 | 67.83㎡ (20.52py) | 지붕 | 알루미늄징크, 아스팔트싱글 |
| 2층면적 | 28.07㎡ (8.49py) | 외부마감 | 알루미늄징크, 테라코트(플렉시텍스), 적삼목 |
| 3층면적 | - | 내부마감 | LG실크벽지, LG강화마루 |
| 1층포치 / 데크 | 1.80㎡ (0.54py) / 13.28㎡ (4.02py) | 창호 | 시스템창호 |
| 2층발코니 / 베란다 | 5.04㎡ (1.52py) | 다락 / 거실오픈 | - / 1층 오픈 |
| 3층발코니 / 베란다 | - |
03 설계컨셉
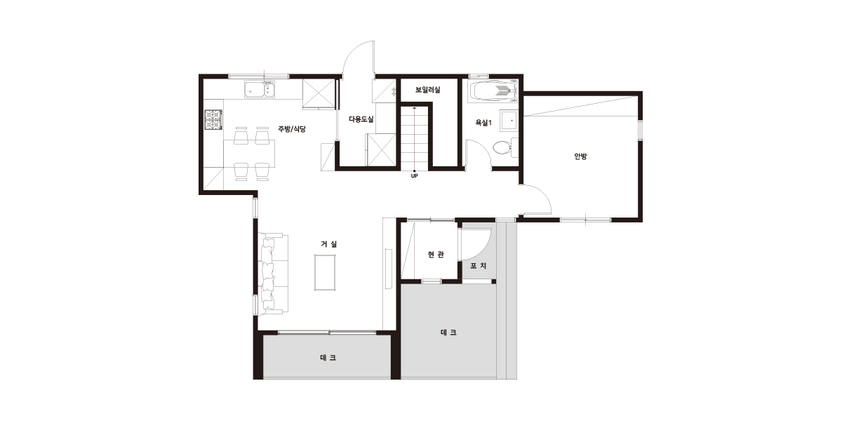
Design concept04 공간구성
Floor Plan| 1F | 1층 구성: 현관, 거실, 주방, 식당, 안방, 다용도실, 보일러실, 욕실1 |
|---|
| 2F | 2층 구성: 침실1, 욕실2 |
|---|