HOME - 지성갤러리 > 설계갤러리 Modern 73평형
경남 창원 김OO님
대지의 형태에 맞게 건축물 디자인 형성
주거시설의 실내평수를 넓히기 위해 1층 일부에 주거 시설 계획
01 외부투시도
Bird's-eye view
02 건축개요
Housing Summary| 총면적 | 242.46㎡ (73.34py) | 구조 | 1층 : 철근콘크리트조 / 2,3층 : 목구조 |
|---|---|---|---|
| 1층면적 | 98.04㎡ (29.66py) | 지붕 | 알루미늄징크 |
| 2층면적 | 90.18㎡ (27.28py) | 외부마감 | 알루미늄징크, AXSON사이딩, 테라코트(플렉시텍스), 탄화목사이딩 |
| 3층면적 | 54.24㎡ (16.41py) | 내부마감 | LG실크벽지, LG강화마루 |
| 1층포치 / 데크 | 3.97㎡(1.20py) / 8.81㎡(2.67py) | 창호 | 시스템창호 |
| 2층발코니 / 베란다 | 38.87㎡(11.76py) | 다락 / 거실오픈 | - |
| 3층발코니 / 베란다 | - |
03 설계컨셉
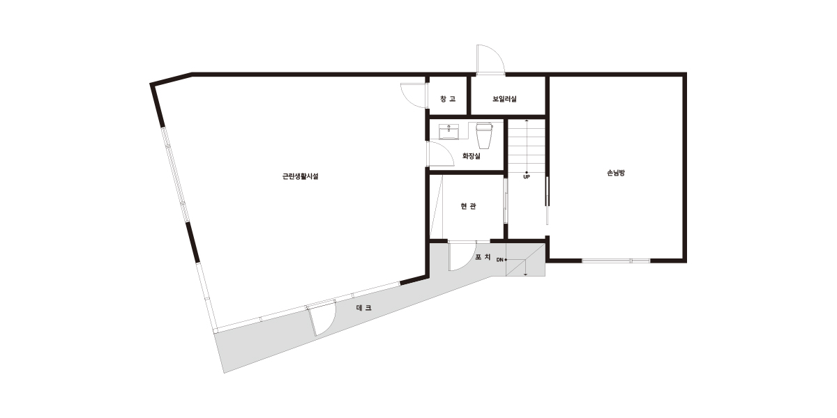
Design concept04 공간구성
Floor Plan| 1F | 1층 구성: 근린생활시설, 화장실, 창고, 보일러실 / 주인세대 - 현관, 손님방 |
|---|
| 2F | 2층 구성: 주인세대 - 거실, 주방, 시당, 다용도실, 컴퓨터실, 안방, 드레스룸, 부부욕실, 욕실1 3층 구성: 주인세대 - 가족실, 침실1, 침실2, 욕실2, 창고 |
|---|