HOME - 지성갤러리 > 설계갤러리 Modern 45평형
경기 양주 유OO님 (제42회 MBC건축박람회)
여러개의 매스들이 합쳐져있는 형태의 디자인계획
지역특성상 4면에서 입체적으로 보이도록 계획
01 외부투시도
Bird's-eye view
02 건축개요
Housing Summary| 총면적 | 147.91㎡ (44.74py) | 구조 | 경량목구조 |
|---|---|---|---|
| 1층면적 | 99.38㎡ (30.06py) | 지붕 | 아스팔트싱글 |
| 2층면적 | 48.53㎡ (14.68py) | 외부마감 | 파벽돌, 탄화목사이딩, 세라믹사이딩 |
| 3층면적 | - | 내부마감 | LG실크벽지, LG강화마루 |
| 1층포치 / 데크 | 3.09㎡(0.93py) / 31.41㎡(9.50py) | 창호 | 시스템창호 |
| 2층발코니 / 베란다 | 9.29㎡(2.81py) | 다락 / 거실오픈 | - |
| 3층발코니 / 베란다 | - |
03 설계컨셉
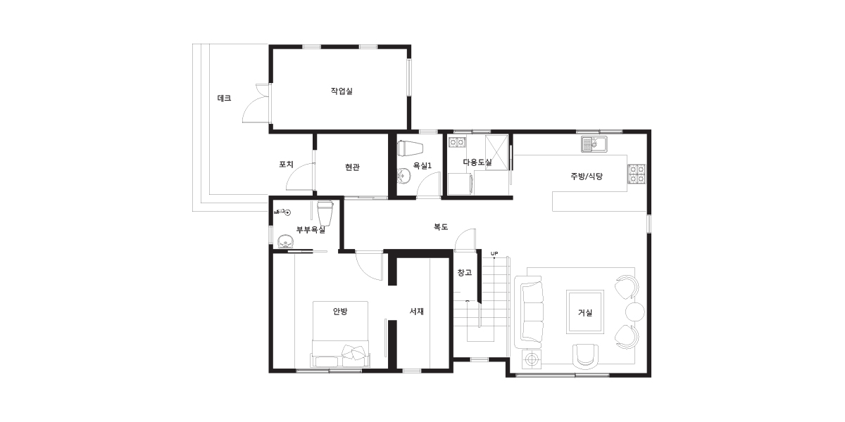
Design concept04 공간구성
Floor Plan| 1F | 1층 구성: 현관, 거실, 주방, 식당, 창고, 안방, 부부욕실, 다용도실, 욕실1, 서재 |
|---|
| 2F | 2층 구성: 침실1, 침실2, 욕실2 |
|---|