HOME - 지성갤러리 > 설계갤러리 Modern 88평형
경북 칠곡 최OO님
벽돌 외장으로 모던하면서도 빈티지한 스타일 연출
주위의 호수와 산을 조망할 수 있는 건축물 배치
01 외부투시도
Bird's-eye view
02 건축개요
Housing Summary| 총면적 | 290.43㎡ (87.86py) | 구조 | 철근콘크리트조 |
|---|---|---|---|
| 1층면적 | 163.66㎡ (49.51py) | 지붕 | 평슬라브 |
| 2층면적 | 126.77㎡ (38.35py) | 외부마감 | 현무암물갈기, 벽돌, 노출콘크리트 |
| 3층면적 | - | 내부마감 | 파벽돌, 에폭시코팅 |
| 1층포치 / 데크 | 9.60㎡ (2.94py) | 창호 | 시스템창호 |
| 2층발코니 / 베란다 | 83.73㎡ (25.33py) | 다락 / 거실오픈 | - |
| 3층발코니 / 베란다 | - |
03 설계컨셉
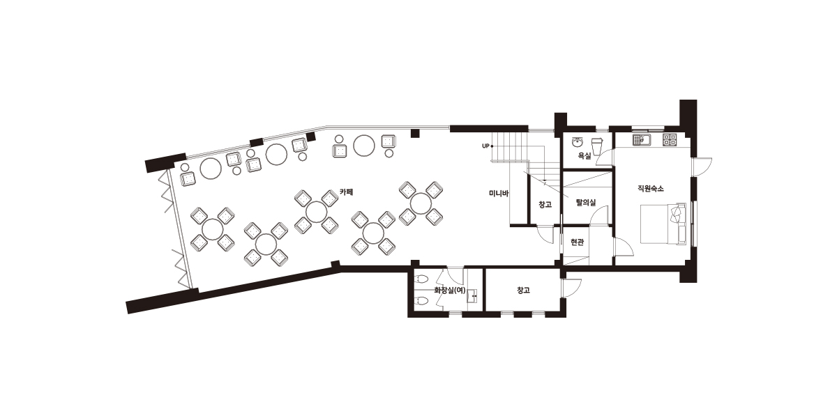
Design concept04 공간구성
Floor Plan| 1F | 1층 구성: 카페, 화장실, 직원숙소, 창고 |
|---|
| 2F | 2층 구성: 카페, 화장실, 로비, 카운터 |
|---|