HOME - 지성갤러리 > 설계갤러리 Modern 104평형
수익형 RC 모던
카페시설과 펜션으로 구성된 수익형 모델
넓은 공용풀장과 각 실별 월풀욕조가 배치되어 있는 고급형 펜션
01 외부투시도
Bird's-eye view
02 건축개요
Housing Summary| 총면적 | 343.91㎡ (104.03py) | 구조 | 철근콘크리트조 |
|---|---|---|---|
| 1층면적 | 161.44㎡ (48.84py) | 지붕 | 평슬라브 |
| 2층면적 | 182.47㎡ (55.20py) | 외부마감 | 스타코, 파벽돌, 탄화목사이딩 |
| 3층면적 | - | 내부마감 | LG실크벽지, LG강화마루 |
| 1층포치 / 데크 | 202.16㎡ (61.15py) / 103.90㎡ (31.43py) | 창호 | 시스템창호 |
| 2층발코니 / 베란다 | 133.84㎡ (40.49py) | 다락 / 거실오픈 | - |
| 3층발코니 / 베란다 | - |
03 설계컨셉
Design concept04 공간구성
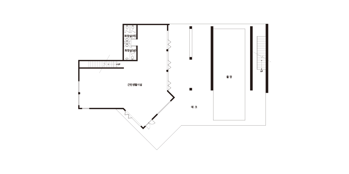
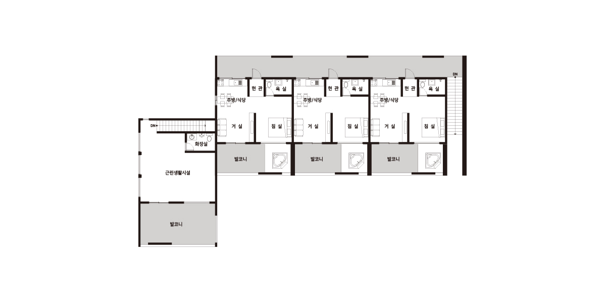
Floor Plan| 1F | 1층 구성: 근린생활시설, 화장실, 풀장 |
|---|
| 2F | 2층 구성: 펜션 3객실 - 현관, 거실, 주방, 식당, 침실, 욕실, 개별발코니, 근린생활시설, 화장실 |
|---|