HOME - 지성갤러리 > 설계갤러리 Modern 111평형
수익형 RC 모던
전면 유리계획을 통한 조망권 확보
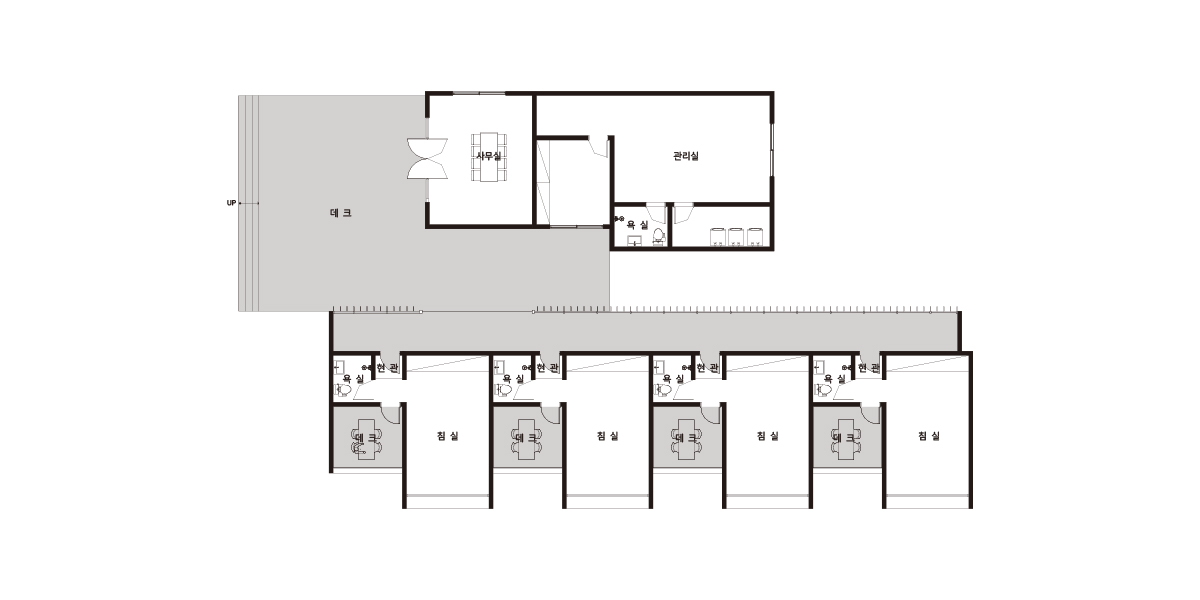
전망 좋은 곳에 위치한 펜션으로 펜션동과 관리동으로 분리
01 외부투시도
Bird's-eye view
02 건축개요
Housing Summary| 총면적 | 406.64㎡ (123.01py) | 구조 | 철근콘크리트조 |
|---|---|---|---|
| 1층면적 | 367.04㎡ (111.03py) | 지붕 | 평슬라브 |
| 2층면적 | - | 외부마감 | 노출콘크리트 |
| 3층면적 | - | 내부마감 | LG실크벽지, LG강화마루 |
| 1층포치 / 데크 | - | 창호 | 시스템창호 |
| 2층발코니 / 베란다 | 39.60㎡ (11.98py) | 다락 / 거실오픈 | - |
| 3층발코니 / 베란다 | - |
03 설계컨셉
Design concept04 공간구성
Floor Plan| 1F | 1층 구성: 펜션동 4객실 : 현관, 침실, 욕실, 개별데크 / 관리동 : 관리실, 사무실, 창고, 욕실 |
|---|
| 2F | 2층 구성: - |
|---|