HOME - 지성갤러리 > 설계갤러리 Modern 142평형
수익형 RC 모던
지형차를 활용한 건축물 계획
실외 풀장 및 실내 풀장을 계획하여 풀빌라 외에도 카페로서의 기능을 극대화
01 외부투시도
Bird's-eye view
02 건축개요
Housing Summary| 총면적 | 469.35㎡ (141.98py) | 구조 | 철근콘크리트조 |
|---|---|---|---|
| 1층면적 | 카페면적 : 105.75㎡ (31.99py) / A동 면적 : 118.08㎡ (35.72py) | 지붕 | 평슬라브 |
| 2층면적 | B동 면적 : 118.08㎡ (35.72py) | 외부마감 | 노출콘크리트, 스타코, 탄화목사이딩 |
| 3층면적 | C동 면적 : 118.08㎡ (35.72py) | 내부마감 | LG실크벽지, LG강화마루 |
| 1층포치 / 데크 | 서비스면적 : 9.36㎡ (2.83py) | 창호 | 시스템창호 |
| 2층발코니 / 베란다 | - | 다락 / 거실오픈 | - |
| 3층발코니 / 베란다 | - |
03 설계컨셉
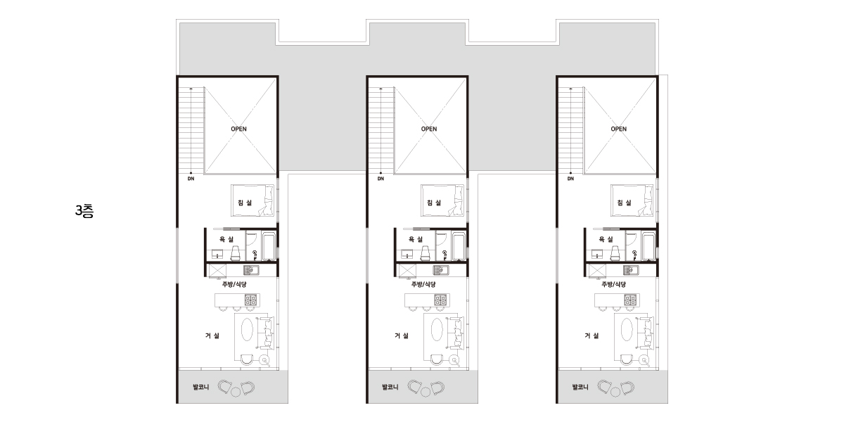
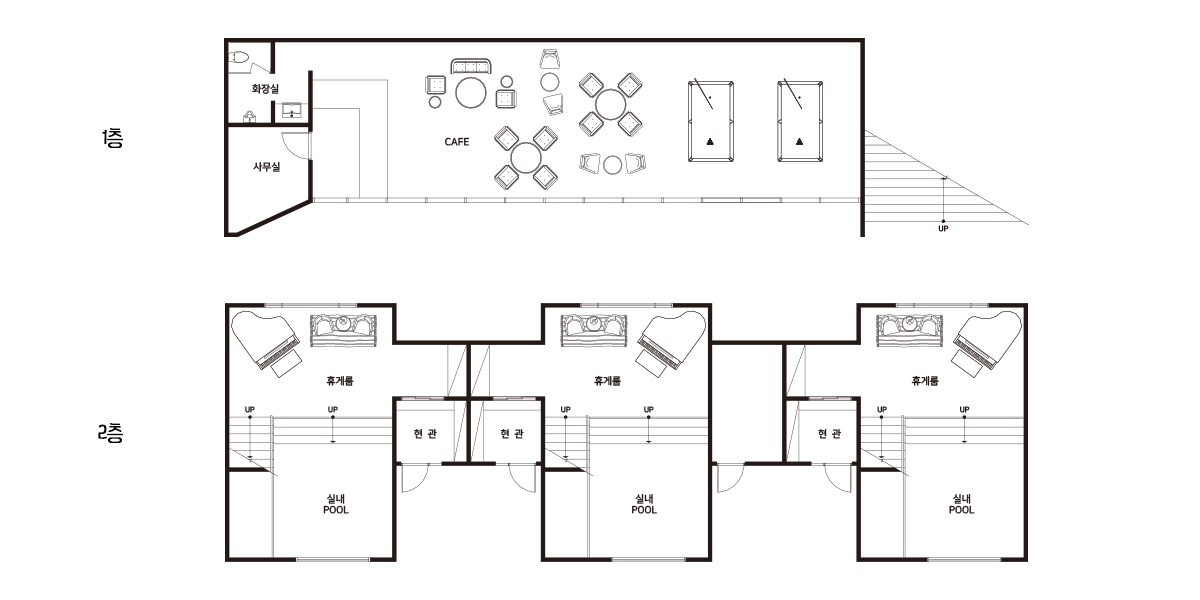
Design concept04 공간구성
Floor Plan| 1F | 1층 구성: 카페, 사무실, 화장실 / 2층 구성 : A,B,C동 - 현관, 휴게룸, 실내POOL/창고 |
|---|
| 2F | 2층 구성: X / 3층 구성: A,B,C동 - 거실, 주방, 식당, 침실, 욕실 |
|---|