HOME - 지성갤러리 > 설계갤러리 Modern 65평형
목조 모던
폴딩도어 설치로 내부공간과 외부공간의 연계성 극대화
멀리서도 돋보일 수 있는 웅장한 외관 스타일 연출
01 외부투시도
Bird's-eye view
02 건축개요
Housing Summary| 총면적 | 214.60㎡ (64.92py) | 구조 | 경량목구조 |
|---|---|---|---|
| 1층면적 | 123.03㎡ (37.22py) | 지붕 | 아스팔트싱글 |
| 2층면적 | 91.57㎡ (27.70py) | 외부마감 | 스타코, 세라믹사이딩, 파벽돌 |
| 3층면적 | - | 내부마감 | LG실크벽지, LG강화마루 |
| 1층포치 / 데크 | 2.38 (0.72py) / 28.57㎡ (8.64py) | 창호 | 시스템창호 |
| 2층발코니 / 베란다 | 12.19㎡ (3.69py) | 다락 / 거실오픈 | 12.96㎡ (3.92py) / 2층 오픈 |
| 3층발코니 / 베란다 | - |
03 설계컨셉
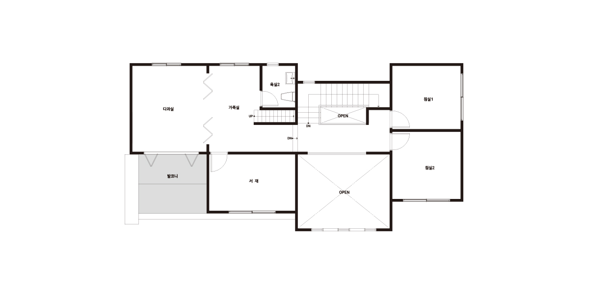
Design concept04 공간구성
Floor Plan| 1F | 1층 구성: 현관, 거실, 주방/식당, 창고, 안방, 드레스룸, 부부욕실, 다용도실, 보일러실, 욕실1, 미싱룸 |
|---|
| 2F | 2층 구성: 침실1, 침실2, 욕실2, 도서관, 다과실 |
|---|