HOME - 지성갤러리 > 설계갤러리 Mediterranean 41평형
전북 완주 엄OO님
넓은 다용도실을 두어 주방에서의 수납공간 최대한 확보
지중해풍의 고풍스럽고 웅장한 디자인
01 외부투시도
Bird's-eye view
02 건축개요
Housing Summary| 총면적 | 135.38㎡ (40.99py) | 구조 | 경량목구조 |
|---|---|---|---|
| 1층면적 | 102.50㎡ (31.00py) | 지붕 | 스페니쉬기와 |
| 2층면적 | 32.88㎡ (9.99py) | 외부마감 | 테라코트(플렉시텍스), 탄화목, 인조석 |
| 3층면적 | - | 내부마감 | LG실크벽지, LG강화마루 |
| 1층포치 / 데크 | 8.12㎡ (2.46py) / 20.79㎡ (6.29py) | 창호 | 시스템창호 |
| 2층발코니 / 베란다 | 8.28㎡ (2.50py) | 다락 / 거실오픈 | - / 2층 오픈 |
| 3층발코니 / 베란다 | - |
03 설계컨셉
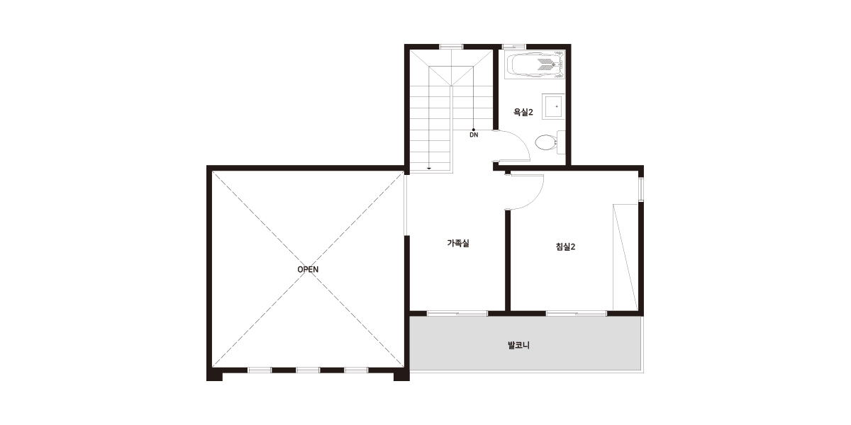
Design concept04 공간구성
Floor Plan| 1F | 1층 구성: 안방, 드레스룸, 부부욕실, 다용도실, 거실, 주방/식당, 현관, 침실1, 욕실, 보일러실 |
|---|
| 2F | 2층 구성: 가족실, 침실2, 욕실 |
|---|