HOME - 지성갤러리 > 설계갤러리 Modern 58평형
목조 모던
내부에 주차장 공간을 두어 편의성 강조
모던하고 세련되면서 고급스러운 도시적인 디자인
01 외부투시도
Bird's-eye view
02 건축개요
Housing Summary| 총면적 | 191.54㎡ (57.94py) | 구조 | 경량목구조 |
|---|---|---|---|
| 1층면적 | 93.50㎡ (28.28py) | 지붕 | 리얼징크, 아스팔트싱글 |
| 2층면적 | 98.04㎡ (29.66py) | 외부마감 | 테라코트(플렉시텍스), 적삼목, 인조석, 이낙스타일 |
| 3층면적 | - | 내부마감 | LG실크벽지, LG강화마루 |
| 1층포치 / 데크 | 10.58㎡ (3.20py) / 14.40㎡ (4.36py) | 창호 | 시스템창호 |
| 2층발코니 / 베란다 | 21.97㎡ (6.65py) | 다락 / 거실오픈 | 주차장 : 34.02㎡ (10.29py) |
| 3층발코니 / 베란다 | - |
03 설계컨셉
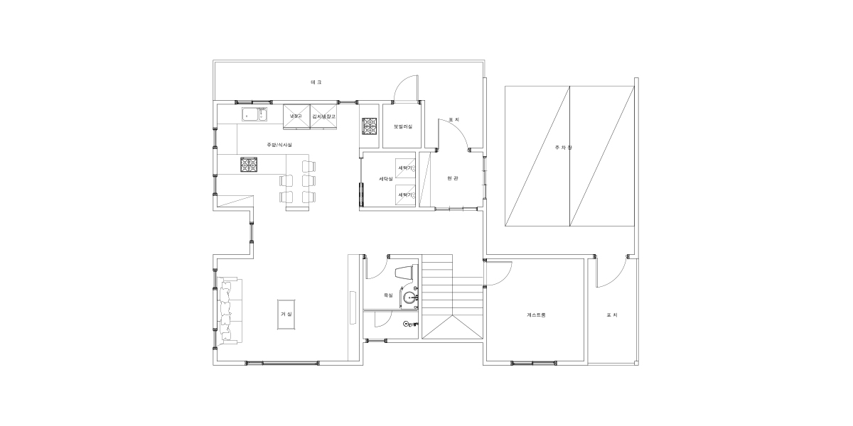
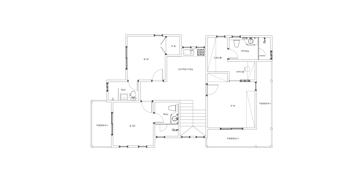
Design concept04 공간구성
Floor Plan| 1F | 1층 구성: 주차장, 현관, 거실, 주방/식당, 다용도실, 보일러실, 욕실1, 게스트룸 |
|---|
| 2F | 2층 구성: 안방, 드레스룸, 파우더룸, 부부욕실, 침실1, 침실2, 욕실2, 욕실3, 간이주방, 가족실 |
|---|